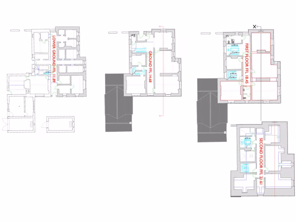
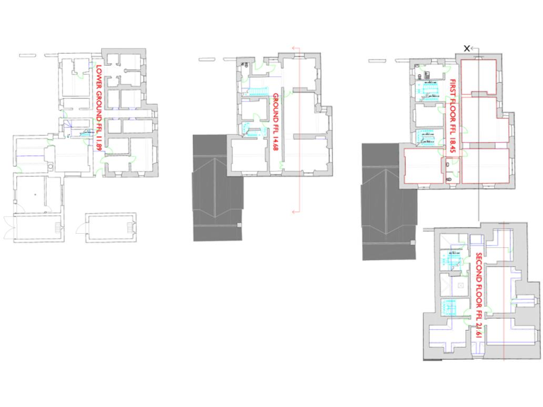
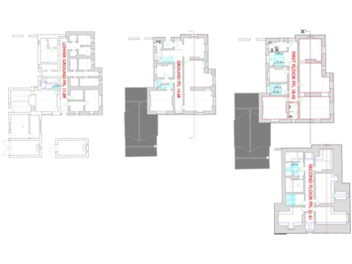
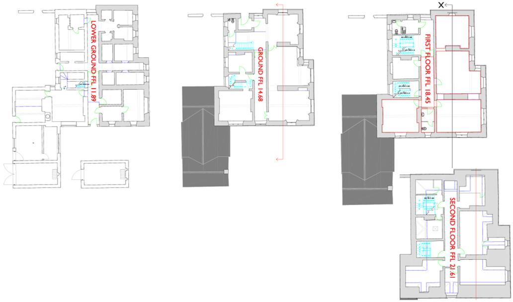
**Standout Features:**
- 12-bedroom Grade II listed building in Bangor's city center
- Planning permission granted for conversion into 9 self-contained apartments
- Rich historical significance, previously housed the Canonry Museum
- Original features including slate flagged floors and stained glass windows
- Substantial rental income potential of over £110,000 annually post-conversion
- Extensive space with ancillary outbuildings and a stable block
**Potential Concerns:**
- Requires renovation and maintenance
- Historical status may limit future alterations
- High crime rate in the local area
Discover a historic gem in the heart of Bangor—a stunning Grade II listed property with immense potential. This impressive 12-bedroom building showcases original gothic architectural features, such as striking slate flagged floors and high ceilings adorned with beautiful leaded stained glass windows. With planning permission already granted for the conversion into nine self-contained apartments, this property presents a lucrative opportunity for savvy investors, promising a gross annual rental income exceeding £110,000.
Positioned a mere 50 meters from Bangor Cathedral and conveniently next to public transport, the location is perfect for those seeking an urban lifestyle with easy access to local amenities. The property also features a large garden, providing an inviting outdoor space, along with ancillary buildings that offer additional revenue possibilities. While some renovation is necessary, the historic charm and prime location make this an exceptional investment for those looking to immerse themselves in Bangor’s rich history while capitalizing on its future potential. Don't miss your chance to own this remarkable piece of architecture—properties with such unique appeal seldom stay on the market for long!
12 bedroom detached house for sale in High Street, Bangor, Gwynedd, LL57 — £470,000 • 12 bed • 14 bath • 3645 ft²
Commercial property for sale in College Road, Bangor, Gwynedd, LL57 — £700,000 • 1 bed • 1 bath • 4090 ft²
6 bedroom house share for sale in Fron Dirion, Bangor, LL57 — £299,000 • 6 bed • 2 bath • 1301 ft²
2 bedroom terraced house for sale in Awel Y Mor, William Street, Bangor, Gwynedd, LL57 — £135,000 • 2 bed • 2 bath • 697 ft²
5 bedroom end of terrace house for sale in Mount Street, Bangor, Gwynedd, LL57 — £139,000 • 5 bed • 2 bath • 1209 ft²
3 bedroom apartment for sale in Tabernacle Chapel, Garth Road, Bangor, LL57 — £115,000 • 3 bed • 1 bath • 640 ft²






























































