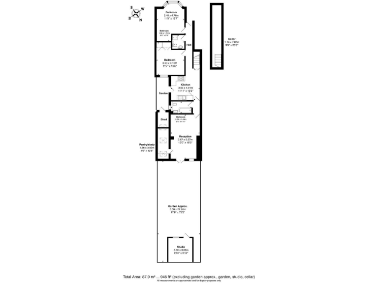
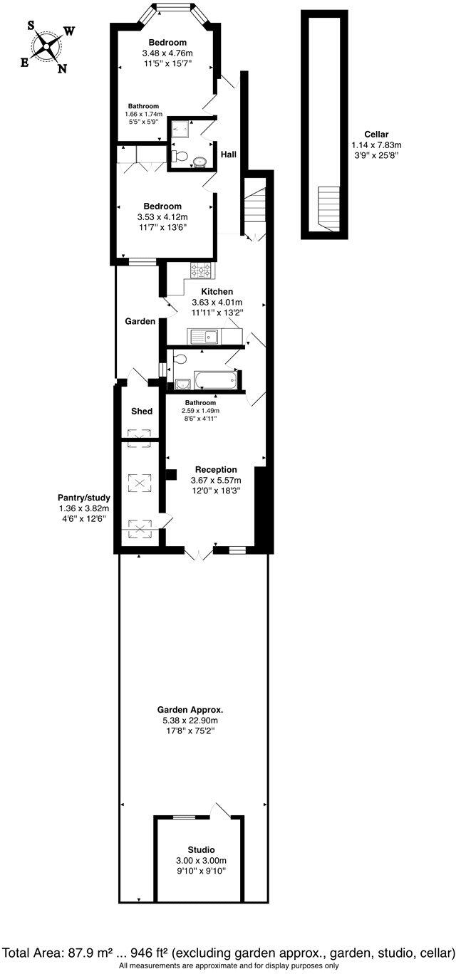
**Standout Features:**
- Spacious two-bedroom flat with two bathrooms
- Additional study/room for versatile use
- Private garden with a separate studio—perfect for a home office or gym
- Extended reception room for extra living space
- Chain-free sale, ready for immediate move-in
- Excellent transport links, close to Harlesden Station and local amenities
- Ideal for young families and investors looking for rental potential
- Neighborhood has a mix of independent shops and green spaces
This charming apartment offers an exceptional urban lifestyle with ample living space and a private garden retreat in NW10. The well-designed layout includes two generous double bedrooms and two bathrooms, making it perfect for young families or professionals. Bright and airy, the modern reception room extends to reveal a lush garden, complete with a versatile studio that can be transformed into your personal gym, workspace, or creative haven.
Conveniently located near Harlesden Station, residents will benefit from excellent transport links to the heart of London. Enjoy weekends exploring the charming local shops, cafes, and the nearby Grand Union Canal towpath for leisurely walks or cycling. This property, while in need of some cosmetic updates, presents a fantastic opportunity for those looking to invest in a vibrant community filled with future potential. Don't miss out—schedule a viewing today to envision your new home!
2 bedroom ground floor flat for sale in Park Road, London NW10 — £525,000 • 2 bed • 1 bath • 846 ft²
2 bedroom flat for sale in Craven Park, London, NW10 — £300,000 • 2 bed • 1 bath • 502 ft²
3 bedroom apartment for sale in Roundwood Road, London, NW10 — £525,000 • 3 bed • 2 bath • 960 ft²
2 bedroom flat for sale in Tunley Road, Harlesden, London, NW10 — £400,000 • 2 bed • 1 bath • 688 ft²
2 bedroom ground floor maisonette for sale in Drayton Road, London NW10 — £385,000 • 2 bed • 1 bath • 723 ft²
2 bedroom flat for sale in Harlesden Road, London, NW10 — £500,000 • 2 bed • 1 bath • 646 ft²






































