**Standout Features:**
- Spacious ground floor apartment with private front entrance
- Two double bedrooms with fitted mirrored wardrobes
- Modern, adapted shower room and generous sitting/dining room
- Fitted kitchen with key appliances: cooker, washing machine, and tumble dryer
- Private patio area and access to landscaped communal gardens
- Allocated car barn and additional visitor parking
- Chain free with quick occupancy possible
**Potential Concerns:**
- Requires modernization due to dated interior and visible wear
- Some areas may show signs of potential mold
- Electric storage heating may require upgrading for efficiency
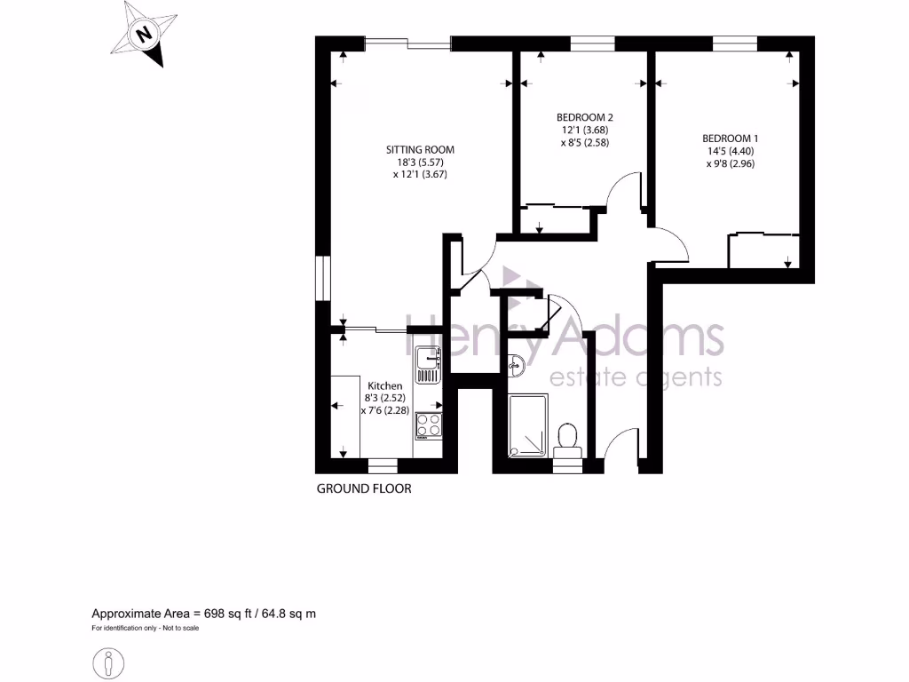
Discover a perfect blend of comfort and convenience in this spacious ground floor apartment located just moments from the beach. With no forward chain, this well-maintained two-bedroom property features a generous sitting/dining room with pleasant views over landscaped communal gardens, complemented by a private patio for outdoor enjoyment. The kitchen is equipped with essential appliances, and both bedrooms offer fitted wardrobes for ample storage. While there is room for modernizing the interior, the apartment's potential is undeniable, making it an excellent opportunity for first-time buyers or investors seeking a coastal retreat.
Situated in the desirable Sandpiper Court development, you'll appreciate the allocated parking and additional visitor spaces, enhancing the property’s appeal. Local amenities, including bus stops and shops, cater to everyday needs, while good primary schools are nearby—a great advantage for families. Act fast, as properties in this prime location with such unique features don’t stay available for long!
2 bedroom apartment for sale in East Bracklesham Drive, Bracklesham Bay, PO20 — £375,000 • 2 bed • 1 bath • 698 ft²
2 bedroom apartment for sale in East Bracklesham Drive, Bracklesham Bay, PO20 — £375,000 • 2 bed • 2 bath • 732 ft²
2 bedroom apartment for sale in Seafields, East Bracklesham Drive, Bracklesham Bay, PO20 — £450,000 • 2 bed • 2 bath • 896 ft²
2 bedroom flat for sale in Shore Road, East Wittering, West Sussex, PO20 — £450,000 • 2 bed • 1 bath • 666 ft²
2 bedroom apartment for sale in Tithe Barn Court, Aldwick Bay Estate, Bognor Regis, West Sussex, PO21 — £350,000 • 2 bed • 1 bath • 888 ft²
2 bedroom apartment for sale in Aldwick Road, Bognor Regis, PO21 — £200,000 • 2 bed • 1 bath • 1001 ft²


















































