Generous plot with lawned rear garden and potential for extension
Three well-proportioned bedrooms, suitable family layout
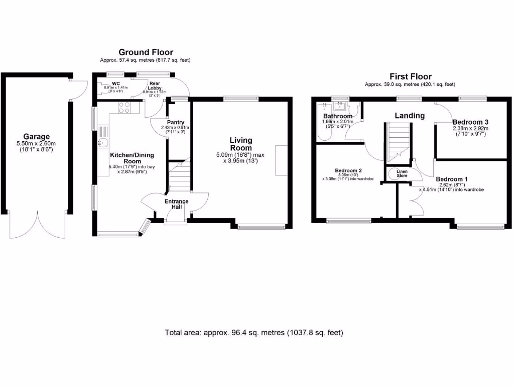
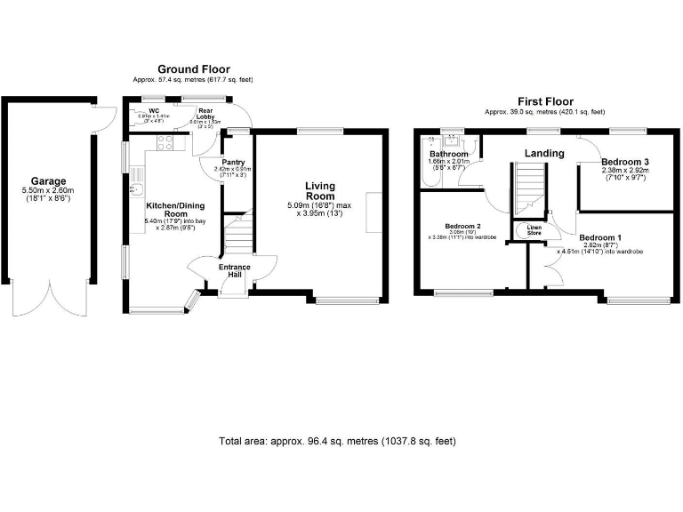
Large kitchen/diner with pantry and ground-floor WC
Driveway for 2–3 cars plus single garage and shared side access
Requires full modernisation — kitchens, bathrooms and decor dated
EPC rating E; consider energy improvements when renovating
Freehold tenure; council tax band C (affordable)
Excellent broadband and mobile signal; no flood risk
Set on a generous plot in Ten Acres, this three-bedroom semi-detached home offers spacious family accommodation and clear potential for modernisation. Ground-floor living space includes a large living room and a kitchen/dining room with pantry, plus a handy rear lobby and WC that open directly to the garden.
Upstairs are three well-proportioned bedrooms and a family bathroom; built-in storage houses the hot water cylinder. Outside provides off-road parking for two to three cars on a wide front driveway, a single garage and a lawned rear garden — useful for children, pets or a future extension (subject to planning).
The house dates from the 1930–1949 period and presents original/mid-century features with double glazing and mains gas central heating. It requires renovation throughout to bring kitchens, bathrooms and decor up to modern standards; the EPC is rated E. Practical positives include fast broadband, excellent mobile signal and freehold tenure.
This property will suit families seeking space and scope to add value, or buyers wanting a renovation project in a well-connected small-town location close to schools, amenities and Alcester High Street. Note the single bathroom, the need for updating, and the EPC rating when budgeting for works.



































































