Move-in ready one-bedroom with high-spec kitchen and secure entry.
Comprehensively refurbished in 2022 with new wiring and plumbing
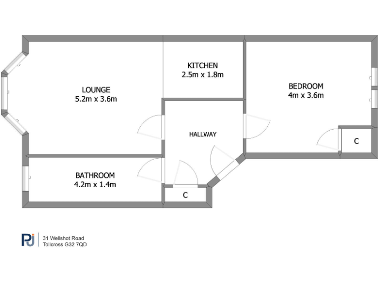
Bright, newly refurbished one-bedroom apartment finished to a high standard and ready to move in. The 2022 renovation included new wiring, plumbing, insulation, double glazing and a modern gas boiler, so major mechanical and thermal upgrades are complete. The Wren kitchen, integrated appliances and luxury bathroom provide contemporary comfort alongside original tenement character such as high ceilings and a front bay window with park outlook.
Practical features include secure entry, shared residents’ gardens and built-in storage. At about 468 sq ft the layout is compact but well-proportioned: a broad lounge/dining room faces the park and a rear double bedroom includes fitted storage and space for a washing machine. The EPC is Band C and broadband and mobile signal are good — useful for home working or letting.
Buyers should note a couple of material points: the property’s tenure is not specified here so purchasers must verify ownership and any factoring arrangements before offer. The local area is described as very deprived, which can affect resale speed and yields; however, the flat’s quality finish and strong transport links support rental demand and appeal to first-time buyers seeking a low-maintenance home.
Overall, this is a turnkey one-bedroom with a rare combination of period character and modern specification, especially suitable for first-time purchasers or landlords seeking a ready-to-let investment close to central transport routes and park amenities.
1 bedroom flat for sale in Wellshot Road, Tollcross, G32 7QW, G32 — £70,000 • 1 bed • 1 bath • 659 ft²
1 bedroom flat for sale in Wellshot Road, Tollcross, G32 7AU, G32 — £89,950 • 1 bed • 1 bath • 501 ft²
3 bedroom flat for sale in Edrom Street, Shettleston, Glasgow, G32 — £210,000 • 3 bed • 2 bath • 1076 ft²
1 bedroom flat for sale in Wellshot Road, Tollcross, G32 — £79,995 • 1 bed • 1 bath
1 bedroom apartment for sale in 0/2, 3 Kirkwell Road, Cathcart, G44 5UN, G44 — £115,000 • 1 bed • 1 bath
1 bedroom flat for sale in Sinclair Drive, Battlefield, G42 9PR, G42 — £169,000 • 1 bed • 1 bath • 548 ft²






















































































