Bright conservatory and low council tax near Good primary schools.
Three bedrooms with built-in wardrobes
Large conservatory extends living and entertaining space
Newly fitted kitchen and modern bathroom
Driveway for off-street parking; small front garden
Enclosed rear garden with patio and lawn
Modest overall size — c.699 sqft; small plot
Slow broadband speeds in the area
Freehold, gas central heating, double glazing
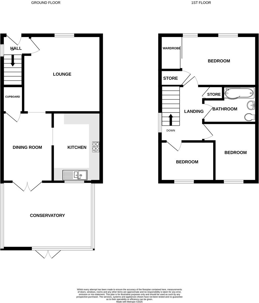
This well-presented three-bedroom semi-detached house in Watlington provides a practical, comfortable home for families or first-time buyers. Ground floor accommodation includes a lounge, dining room and a large bright conservatory that extends living space for entertaining or children's play. The kitchen and bathroom are recently fitted, and the house benefits from UPVC double glazing and gas central heating.
Outside, the property sits on a small plot with an enclosed lawned rear garden, a sheltered patio and a driveway for off-street parking. The picket-fenced front garden adds kerb appeal. Constructed in the early 1990s, the home is structurally straightforward with cavity construction and a filled cavity wall.
Notable positives are the conservatory, built-in kitchen appliances, integrated washing machine and practical layout. Drawbacks to note: the total internal size is modest (about 699 sqft), there is one family bathroom only, broadband speeds in the area are slow, and the plot is small — limiting major rear extensions. Council tax is low and there is no flooding risk.
Overall this is a tidy, move-in-ready house that suits a growing family or purchaser seeking an affordable freehold home in a quiet village setting. Prospective buyers should verify appliances, services and measurements themselves and consider any desired improvements to suit long-term needs.
3 bedroom semi-detached house for sale in Martin Close, Watlington, PE33 — £249,995 • 3 bed • 2 bath • 1076 ft²
3 bedroom semi-detached house for sale in Old Chapel Close, Watlington, King's Lynn, PE33 — £290,000 • 3 bed • 2 bath • 1231 ft²
3 bedroom end of terrace house for sale in Stiffkey Close, Watlington, King's Lynn, PE33 — £210,000 • 3 bed • 1 bath • 631 ft²
2 bedroom semi-detached house for sale in Barnards Lane, Watlington, Norfolk, PE33 — £230,000 • 2 bed • 1 bath • 762 ft²
4 bedroom detached house for sale in Station Road, Watlington, PE33 — £450,000 • 4 bed • 2 bath • 1847 ft²
3 bedroom detached bungalow for sale in Cecil Close, Watlington, King's Lynn, PE33 — £350,000 • 3 bed • 2 bath • 1141 ft²














































































































