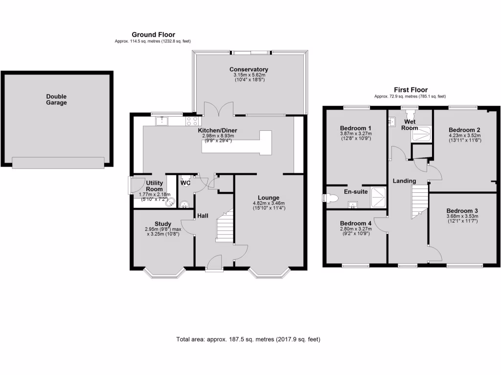
Generous four-bedroom home with garage and low-maintenance garden for family living.
Large open-plan kitchen-diner with island and integrated appliances
Conservatory overlooking landscaped, low-maintenance rear garden
Double garage, driveway parking for multiple vehicles
Four double bedrooms; master with en‑suite wet room
Approx. 2,017 sq ft — generous family living space
EPC rating C (average energy efficiency)
Council Tax Band E; higher-than-average local council tax costs
Local area: above-average crime and notable deprivation indices
Set back in a tucked-away Uphill position, this modern four-bedroom detached home offers generous family living across two floors. The property’s large open-plan kitchen-diner, adjoining conservatory and separate lounge create flexible space for daily life and entertaining. A double garage, driveway parking and a well-landscaped, low‑maintenance rear garden with summerhouse add practical outdoor living and storage.
Bedrooms are all doubles, including a master with an en-suite wet room and a contemporary family wet room on the first floor — practical layouts for a growing household. The house totals approximately 2,017 sq ft, with useful extras such as a study and a utility room to keep living areas uncluttered.
Important local and running-cost notes: the property sits in an area with higher-than-average crime and notable deprivation indices, and it falls in Council Tax Band E. The EPC rating is C. These factors should be weighed alongside the home’s size, layout and parking provisions when considering suitability.
Overall, this substantial, well-presented family home will suit buyers seeking generous, low‑maintenance living in a discreet city location. Early viewing is recommended to appreciate the scale and practical layout on offer.
4 bedroom semi-detached house for sale in Curle Avenue, Lincoln, LN2 — £530,000 • 4 bed • 1 bath • 2235 ft²
5 bedroom detached house for sale in Shearwater Road, Lincoln, LN6 — £450,000 • 5 bed • 3 bath • 1874 ft²
4 bedroom detached house for sale in Bunkers Hill, Lincoln, LN2 — £370,000 • 4 bed • 1 bath • 1674 ft²
4 bedroom detached house for sale in Riseholme Road, Uphill, Lincoln, LN1 — £525,000 • 4 bed • 2 bath • 2600 ft²
4 bedroom detached house for sale in Greetwell Road, Lincoln, LN2 — £485,000 • 4 bed • 2 bath • 1652 ft²
5 bedroom detached house for sale in Lee Road, Lincoln, LN2 — £750,000 • 5 bed • 4 bath • 3252 ft²






















































































































