Spacious three-bed home with planning permission for extension and strong commuter links.
Three-bedroom detached family home on a quiet cul-de-sac
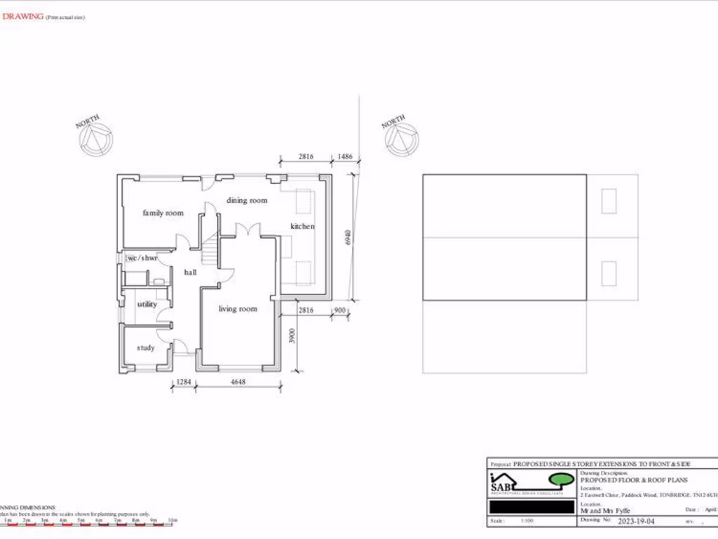
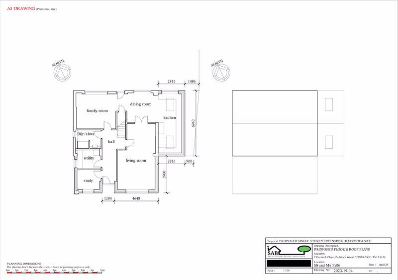
Set on a quiet cul-de-sac in Paddock Wood, this three-bedroom detached home offers comfortable family living with scope to extend. The house sits on a large plot with mature borders creating a private rear and side garden — ideal for children and outdoor entertaining. An integral garage and wide driveway provide practical parking for multiple cars.
Planning permission (25/01509/FULL) is already granted for a single-storey front and side extension including garage conversion, unlocking extra living space and improving the footprint without the uncertainty of a fresh application. Interiors are neutrally presented with wood flooring and good natural light, making the house straightforward to move into or update to your taste.
Practical details to note: the property is freehold, EPC rated D (63), and in Council Tax Band E (above average). Flood risk information provided varies; buyers should verify local flood risk and insurance costs. Broadband and mobile coverage are strong and the property is within walking distance of the high street, schools, parks and the mainline station — a genuine commuter-friendly position.
This home suits families or buyers seeking a sensible renovation/extension project with planning permission in place. It blends immediate liveability with clear potential to add value through the approved works, while running costs and local risk factors should be checked before offer.
4 bedroom detached house for sale in Dimmock Close, Paddock Wood, TN12 — £460,000 • 4 bed • 1 bath • 1241 ft²
3 bedroom semi-detached house for sale in Tutsham Way, Paddock Wood, TN12 6UA, TN12 — £435,000 • 3 bed • 1 bath • 796 ft²
3 bedroom detached house for sale in Utah Road, Paddock Wood, TN12 — £650,000 • 3 bed • 2 bath • 1455 ft²
3 bedroom detached house for sale in Forest Road, Paddock Wood, TN12 6JU, TN12 — £475,000 • 3 bed • 1 bath • 1225 ft²
4 bedroom detached house for sale in St. Andrews Road, Paddock Wood, Tonbridge, TN12 — £499,950 • 4 bed • 1 bath • 1421 ft²
4 bedroom detached house for sale in St. Andrews Road, Paddock Wood, Tonbridge, TN12 — £695,000 • 4 bed • 2 bath • 1941 ft²


























































































