PO4 0LW - 3 bedroom terraced house for sale in Trevor Road, Southsea,…

View on Property Piper

3 bedroom terraced house for sale in Trevor Road, Southsea, Hampshire, PO4

Summary - 15 TREVOR ROAD SOUTHSEA PO4 0LW

3 bed 1 bath Terraced

Newly refurbished three-bed terrace with Lifetime Lease option for over-60s.
Three bedrooms in newly refurbished Victorian mid-terrace
A newly refurbished three-bedroom Victorian terraced home in Southsea, offered with vacant possession and neutral decor throughout. The property benefits from a recently refitted kitchen, double glazing and gas central heating by boiler and radiators, presenting low immediate maintenance for a move-in-ready purchase.

This Home for Life Lifetime Lease example is targeted at buyers aged 60+ wishing to buy a share (up to 50%) and secure long-term housing with a reduced purchase price; the illustrative Lifetime Lease guide price shown is £185,500 against a full market price of £280,000. Actual price and saving vary by age and circumstances—use the Homewise calculator or request a personalised quote for exact figures.

Practical considerations: rooms are modest in size and the plot is small, with a rear garden and decking. The property dates from the early 20th century and has cavity walls without added insulation (assumed), so further insulation work could be considered. Crime in the immediate area is reported as high, which some buyers should weigh against other local benefits such as good broadband, excellent mobile signal and nearby amenities and schools.

Suitable as a retirement or downsizing option for those over 60 seeking a lower upfront cost via the Lifetime Lease route, or as a buy-to-let/first purchase at full market value. Buyers should verify tenure details, any planning or regulation consents for extensions, and check appliances and services before exchange.

Property Details

Image Descriptions

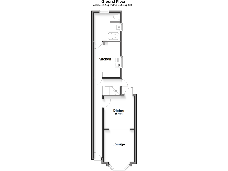
Floorplan Description

Rooms

Textual Property Features

Target Audience

AI Tags

Detected Visual Features

EPC Details

Nearby Schools

Nearest Bars And Restaurants

,,,,}

Nearest General Shops

,,}

Nearest Grocery shops

,,}

Nearest Supermarkets

,,}

Nearest Religious buildings

,,}

Nearest Medical buildings

,,,}

Nearest Airports

}

Nearest Leisure Facilities

,,,,}

Nearest Tourist attractions

,,}

Nearest Train stations

,,,,}

Nearest Bus stations and stops

,,,,}

Nearest Hotels

,,}

Tags

Local Market Stats

AirBnB Data

Similar Properties

Meta

High Res Images

Compatible Images

Low res Images

Thumbnails

Raw Images

High Res Floorplan Images

Compatible Floorplan Images

Low res Floorplan Images

FloorplanImages Thumbnail

Raw Floorplan Images