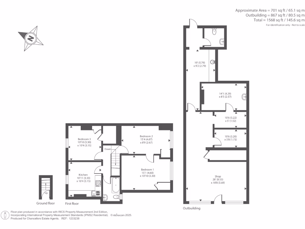
**Standout Features:**
- Mixed-use configuration with commercial unit and residential flat
- Prime location in Camberley, just 0.5 miles from Blackwater Station
- Two spacious double bedrooms and one bathroom
- Freehold title, no onward chain, ideal for investors
- A2 usage allows various commercial activities, with potential for multiple income streams
- Large overall size of 1,568 sq. ft. provides renovation opportunities
**Concise Summary:**
Discover this unique investment opportunity in the heart of Camberley, Surrey. This exceptionally large mixed-use property features a fully functional commercial unit on the ground floor, perfect for entrepreneurs, plus a spacious two-bedroom residential flat on the upper level—ideal for those seeking additional rental income. With A2 usage zoning, envision various business possibilities right from your doorstep.
Situated only a 0.5-mile walk to Blackwater Station, this property benefits from excellent transport links, along with fast broadband and mobile signal, enhancing its appeal for both commercial and residential tenants. While the property does require some renovation—particularly in the kitchen—it presents a blank canvas for personalization.
Surrounded by varied amenities, including restaurants, shops, and schools, this location caters to both business and family needs. Given the property's chain-free status and expansive size, it's a rare find that won't last long on the market. Whether you're an investor looking to tap into multiple income streams or a family seeking spacious living with business potential, don’t miss out on this opportunity.
2 bedroom house for sale in Watchetts Road, Camberley, Surrey, GU15 — £375,000 • 2 bed • 2 bath • 2500 ft²
Land for sale in Park Street, Camberley, Surrey, GU15 — £1,250,000 • 5 bed • 4 bath
High street retail property for sale in 5 - 15 Obelisk Way, Obelisk Way, Camberley, GU15 — POA • 1 bed • 1 bath • 15564 ft²
Office for sale in 12 Kings Ride, Camberley, GU15 4JG, GU15 — POA • 1 bed • 1 bath • 1440 ft²
High street retail property for sale in 4 Princess Way, Camberley, GU15 3SP, GU15 — £600,000 • 1 bed • 1 bath • 1572 ft²
High street retail property for sale in 31 & 31A High Street, Camberley, GU15 3RB, GU15 — POA • 1 bed • 1 bath • 1464 ft²










































































