**Standout Features:**
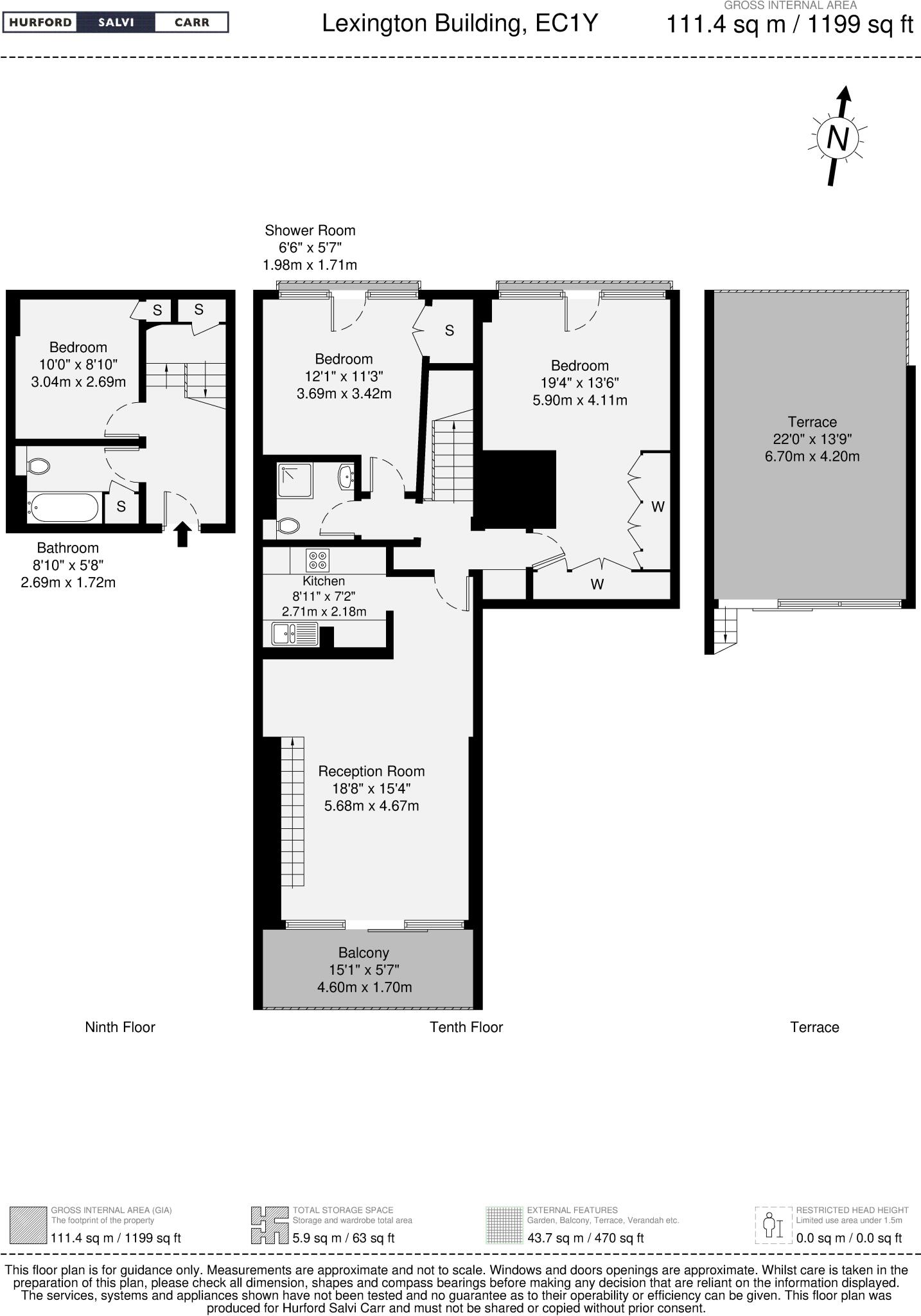
- Size: 1,199 Sq ft (111.4 Sq m)
- Three-bedroom penthouse with balcony and private roof terrace
- Dedicated underground parking space
- 24-hour concierge service and communal landscaped gardens
- Excellent transport links to multiple stations
- High-end finishes and natural light with double-height ceilings
**Concerns:**
- High service charge of £9,400
- Council tax categorized as very expensive
- Crime in the area is rated very high
Discover your urban oasis in this stunning three-bedroom penthouse apartment, nestled on the top two floors of a prestigious building, set between Moorgate and Old Street. Offering an impressive 1,199 Sq ft of contemporary living space, this home boasts a bright, open-plan living area with soaring double-height ceilings and large windows that create a light-filled environment. Enjoy your morning coffee on the sizable balcony with captivating city views or host gatherings on the private roof terrace, perfect for entertaining under the stars.
This penthouse features three well-appointed bedrooms, including a spacious master suite, and a tastefully designed family bathroom. The property comes complete with an underground parking space, ensuring both convenience and security. Residents benefit from premium amenities including a 24-hour concierge service, gym access, bike storage, and beautifully maintained communal gardens—a rarity for city living.
Situated in a vibrant multicultural neighborhood, this prime location offers fantastic proximity to renowned schools and a plethora of local amenities. With excellent transport links via Old Street and Moorgate stations, your daily commute will be a breeze. While the property does carry a high service charge and council tax, its luxurious design and exclusive features make it a worthwhile investment for discerning buyers looking for comfort, style, and future potential in the heart of the city. Act quickly; penthouses like this don’t stay on the market for long!











































































































































