Affordable starter home near schools and transport links.
Two double bedrooms with high-ceiling main bedroom
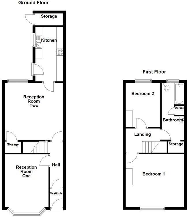
A compact two-bedroom mid-terrace that offers an affordable step onto the ladder in central Padiham. The house pairs period character — high ceilings and a bay window — with a modern fitted kitchen and a generous family bathroom. Living spaces are well laid out across two reception rooms and a practical galley kitchen, making the home immediately liveable.
This property is best suited to first-time buyers or investors seeking a straightforward, low-entry purchase. The footprint is small-to-average for a two-bed terrace; outside space is limited to a front courtyard and a modest rear yard with a small outbuilding. On-street parking and good mobile and broadband connectivity support everyday convenience.
Be clear about the notable constraints: the tenure is leasehold, the neighbourhood shows high deprivation and above-average crime levels, and the original stone walls likely lack insulation. The EPC is C and the boiler/radiators run on mains gas, but some thermal improvements could be beneficial over time. Viewing is essential to assess suitability and scope for any cosmetic or energy-efficiency upgrades.
For buyers prioritising affordability, local schools and transport links make this a practical choice. For investors, the compact layout and modern kitchen reduce immediate renovation costs, though redecoration, insulation work, or security improvements may be required to maximise rental appeal.
2 bedroom terraced house for sale in Padiham Road, Burnley, BB12 — £100,000 • 2 bed • 1 bath • 1001 ft²
2 bedroom terraced house for sale in Altham Street, Padiham, Lancashire, BB12 — £95,000 • 2 bed • 1 bath
3 bedroom terraced house for sale in Herbert Street, Padiham, Burnley, BB12 — £85,000 • 3 bed • 1 bath • 700 ft²
2 bedroom terraced house for sale in Beech Street, Padiham, BB12 — £92,000 • 2 bed • 1 bath • 797 ft²
2 bedroom terraced house for sale in Alma Street, Padiham, Burnley, BB12 — £115,000 • 2 bed • 1 bath • 808 ft²
2 bedroom terraced house for sale in Victoria Road, Padiham, Burnley, BB12 — £125,000 • 2 bed • 1 bath • 927 ft²


























































































