**Property Highlights:**
- Two-bedroom detached bungalow in Denbigh
- Good-sized garden with westerly aspect
- Detached garage and off-road parking for two cars
- Gas heating with recently replaced boiler
- Scope for refurbishment and modernization
- No onward chain
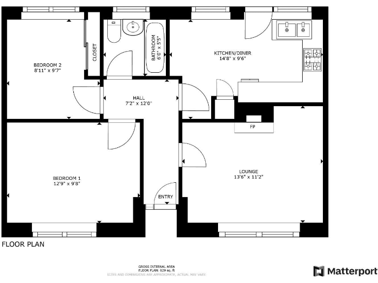
This charming two-bedroom detached bungalow is nestled in the sought-after Myddleton Park estate, offering a fantastic opportunity for families or first-time buyers looking to create a personalized home in a peaceful, established cul-de-sac. The spacious interior features well-proportioned rooms, including a cozy lounge, functional kitchen with integrated appliances, and two inviting bedrooms, all accessible via a convenient central hallway.
The exterior boasts off-road parking for two vehicles and a detached garage, ideal for additional storage or projects. The private rear garden is generously sized and designed for enjoyment, complete with a patio area that basks in lovely afternoon sunlight. While the property does require some renovation, it presents a blank canvas for buyers eager to modernize and make it their own. Conveniently located near local shops and bus services, with no onward chain to complicate the purchase, this bungalow is a must-see for anyone in search of an affordable, family-friendly home with exceptional future potential. Act quickly—opportunities like this don’t last long!
2 bedroom bungalow for sale in Mytton Park, Denbigh, LL16 — £240,000 • 2 bed • 1 bath • 756 ft²
3 bedroom bungalow for sale in Erw Salusbury, Denbigh, LL16 — £264,950 • 3 bed • 1 bath • 845 ft²
2 bedroom detached bungalow for sale in Marcellas Court, Denbigh, LL16 — £155,000 • 2 bed • 1 bath • 625 ft²
3 bedroom detached bungalow for sale in Rhyl Road, Denbigh, LL16 — £239,950 • 3 bed • 1 bath • 2008 ft²
Detached bungalow for sale in Lon Tywysog, Denbigh, LL16 — £185,000 • 1 bed • 1 bath • 732 ft²
3 bedroom bungalow for sale in Erw Salusbury, Denbigh, LL16 — £275,000 • 3 bed • 1 bath • 1072 ft²






























































