**Standout Features:**
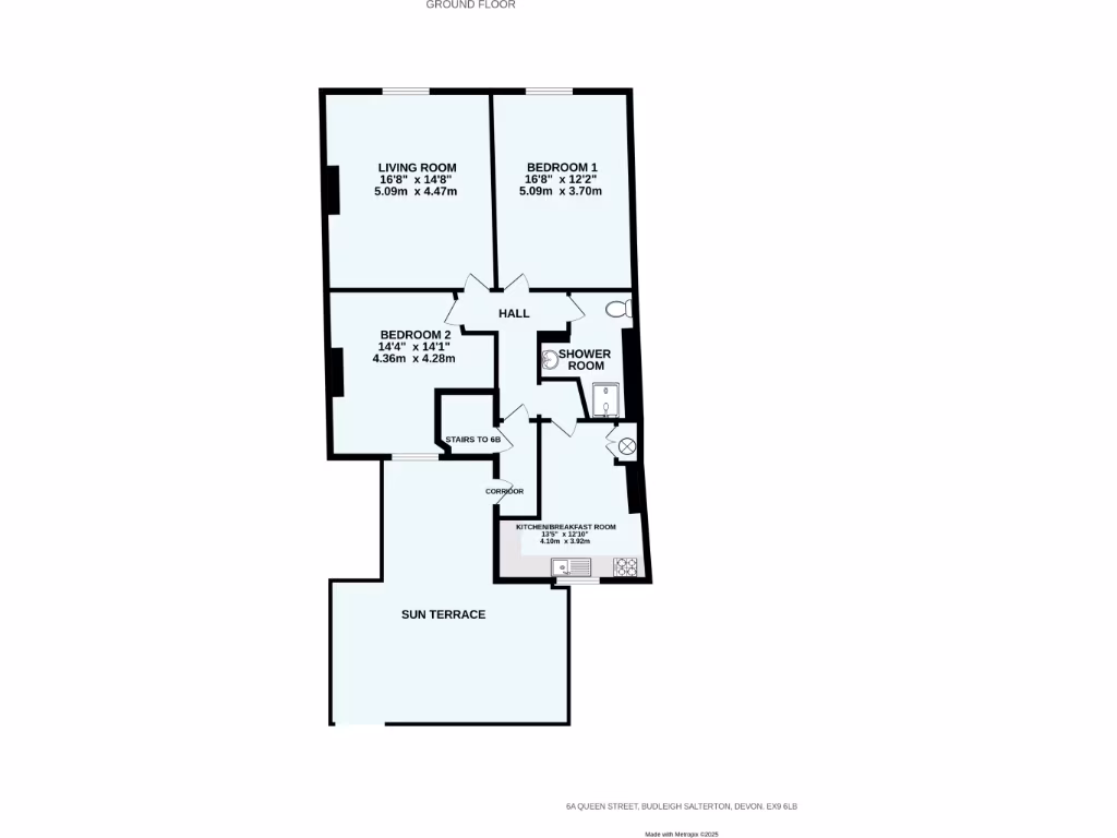
- Two-bedroom, one-bathroom first-floor apartment
- Average-sized rooms with plenty of natural light
- Centrally located in Budleigh Salterton, just minutes from the sea front
- Low crime rate and affordable council tax
- Solid brick built form with double glazing (post-2002)
**Potential Concerns:**
- Leasehold property
- Lack of insulation within walls (assumed)
- Average broadband speeds
This charming first-floor apartment at 6A Queen Street, Budleigh Salterton, offers a perfect blend of comfort and convenience in a vibrant coastal town. Boasting two spacious bedrooms and a well-sized living area, the property is drenched in natural light, creating an inviting atmosphere ideal for small families or professionals. Just a short walk from the scenic sea front, residents will enjoy the peaceful surroundings and the benefits of low crime rates and affordable council tax.
Although the leasehold status and potential wall insulation concerns may require future consideration, the apartment's excellent central location and lovely communal areas make it a delightful find. It also presents an opportunity for first-time buyers or investors to secure a foothold in this affluent community. With its proximity to local amenities—including shops, dining, healthcare, and reputable schools—this property truly embodies the best of coastal living. Don’t miss out on the chance to make it your own; properties like this don’t stay on the market for long!
1 bedroom apartment for sale in Coastguard Road, Budleigh Salterton, Devon, EX9 — £395,000 • 1 bed • 2 bath • 862 ft²
2 bedroom apartment for sale in Cliff Road, Budleigh Salterton, Devon, EX9 — £350,000 • 2 bed • 2 bath • 872 ft²
4 bedroom maisonette for sale in High Street, Budleigh Salterton, Devon, EX9 — £325,000 • 4 bed • 2 bath • 1330 ft²
2 bedroom apartment for sale in Arden Close, Budleigh Salterton, Devon, EX9 — £285,000 • 2 bed • 1 bath • 696 ft²
2 bedroom apartment for sale in Station Road, Budleigh Salterton, Devon, EX9 — £199,950 • 2 bed • 1 bath • 602 ft²
2 bedroom apartment for sale in The Rosemullion, Cliff Road, Budleigh Salterton, Devon, EX9 — £435,000 • 2 bed • 2 bath • 804 ft²


































