Approved loft conversion and strong development potential near Woolwich amenities.
Planning permission granted for an additional two‑storey dwelling
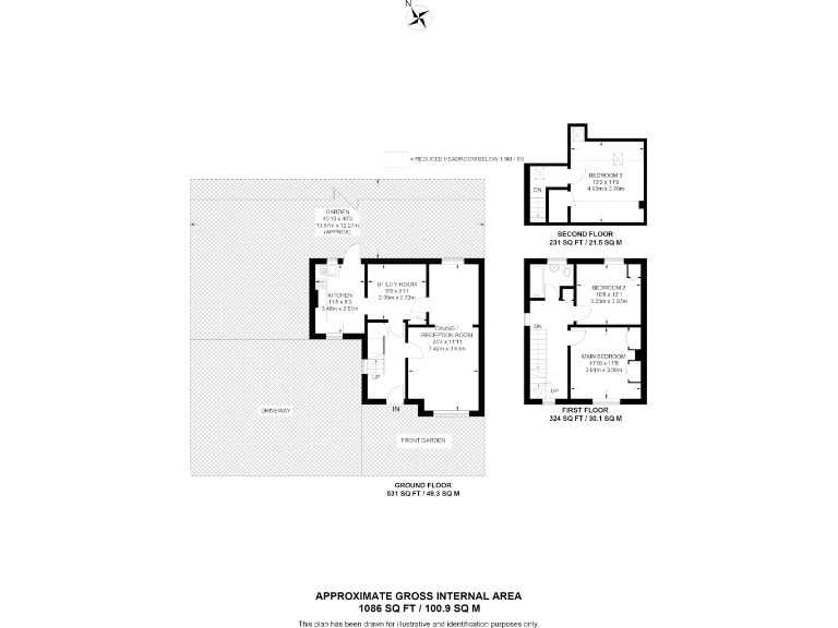
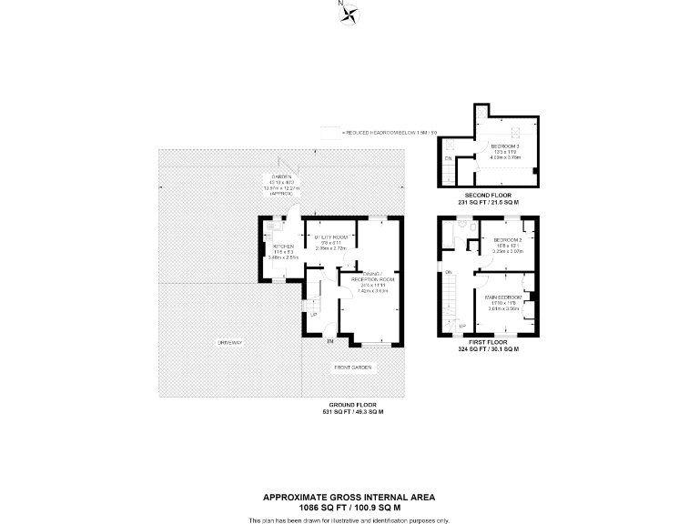
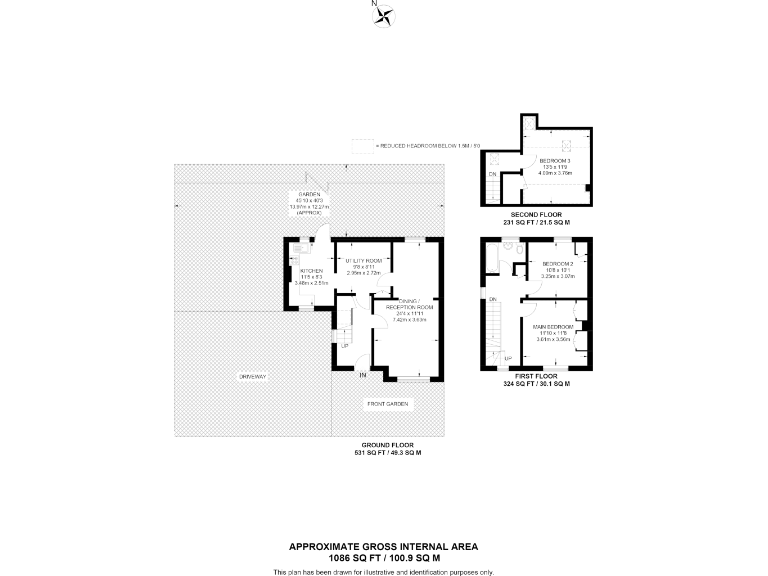
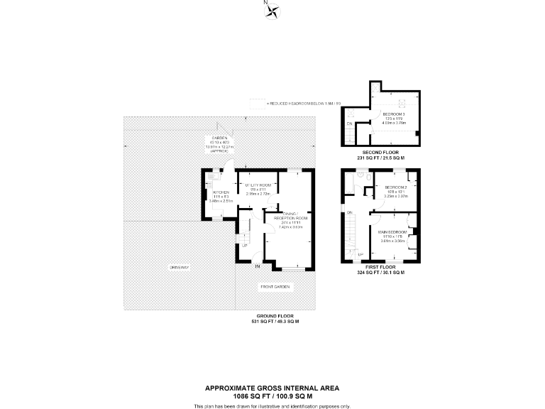
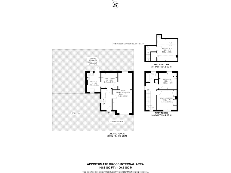
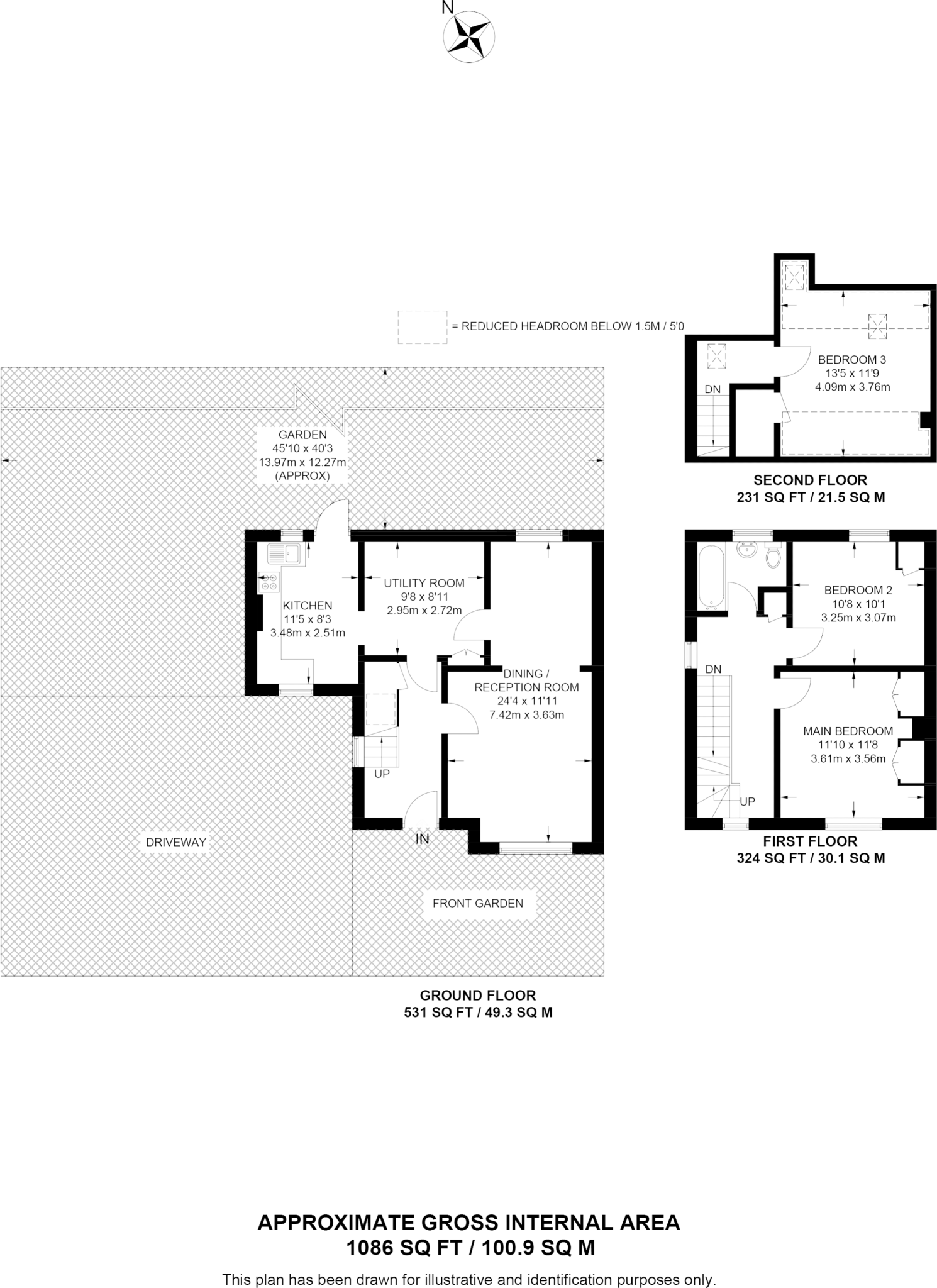
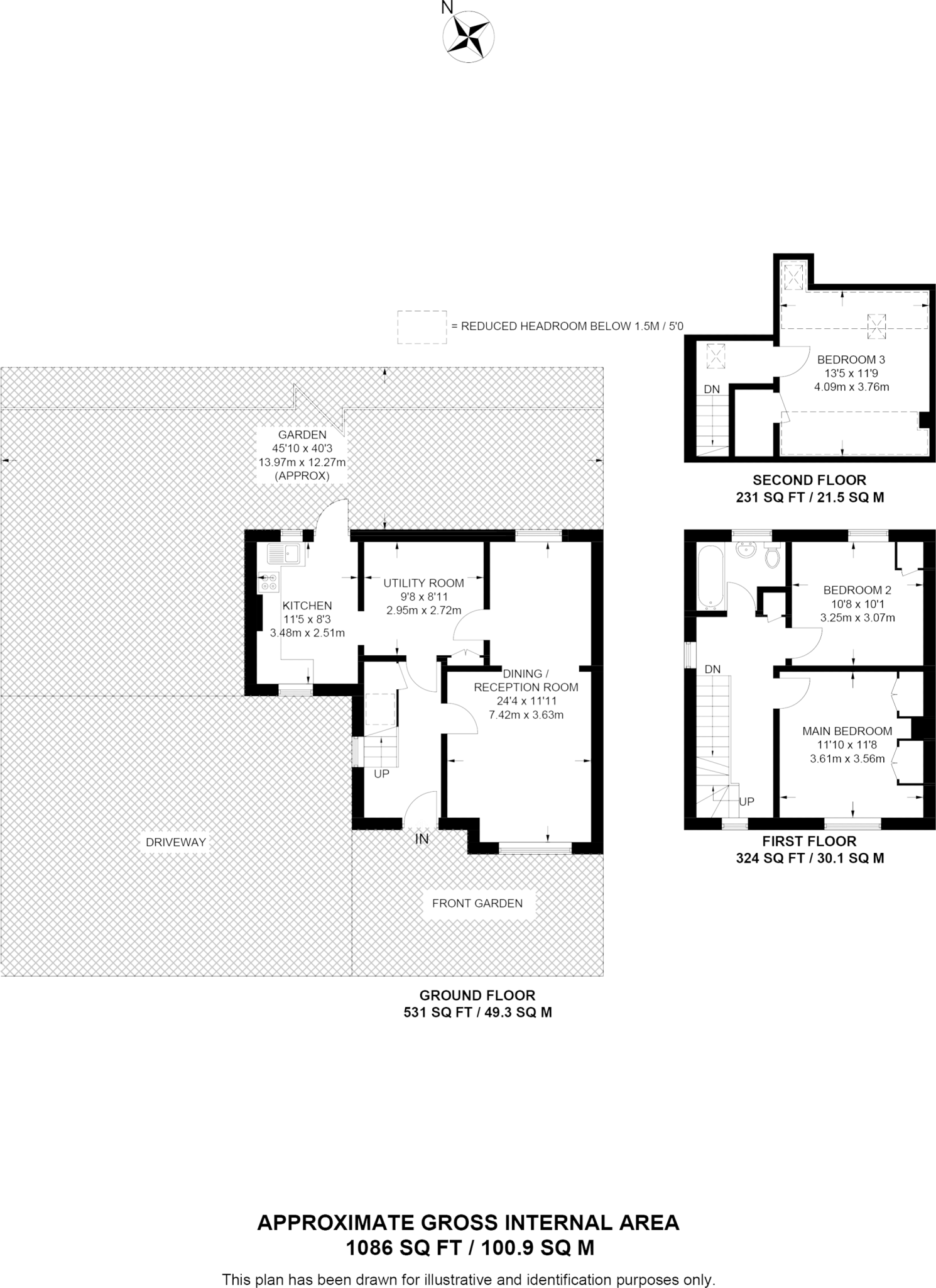
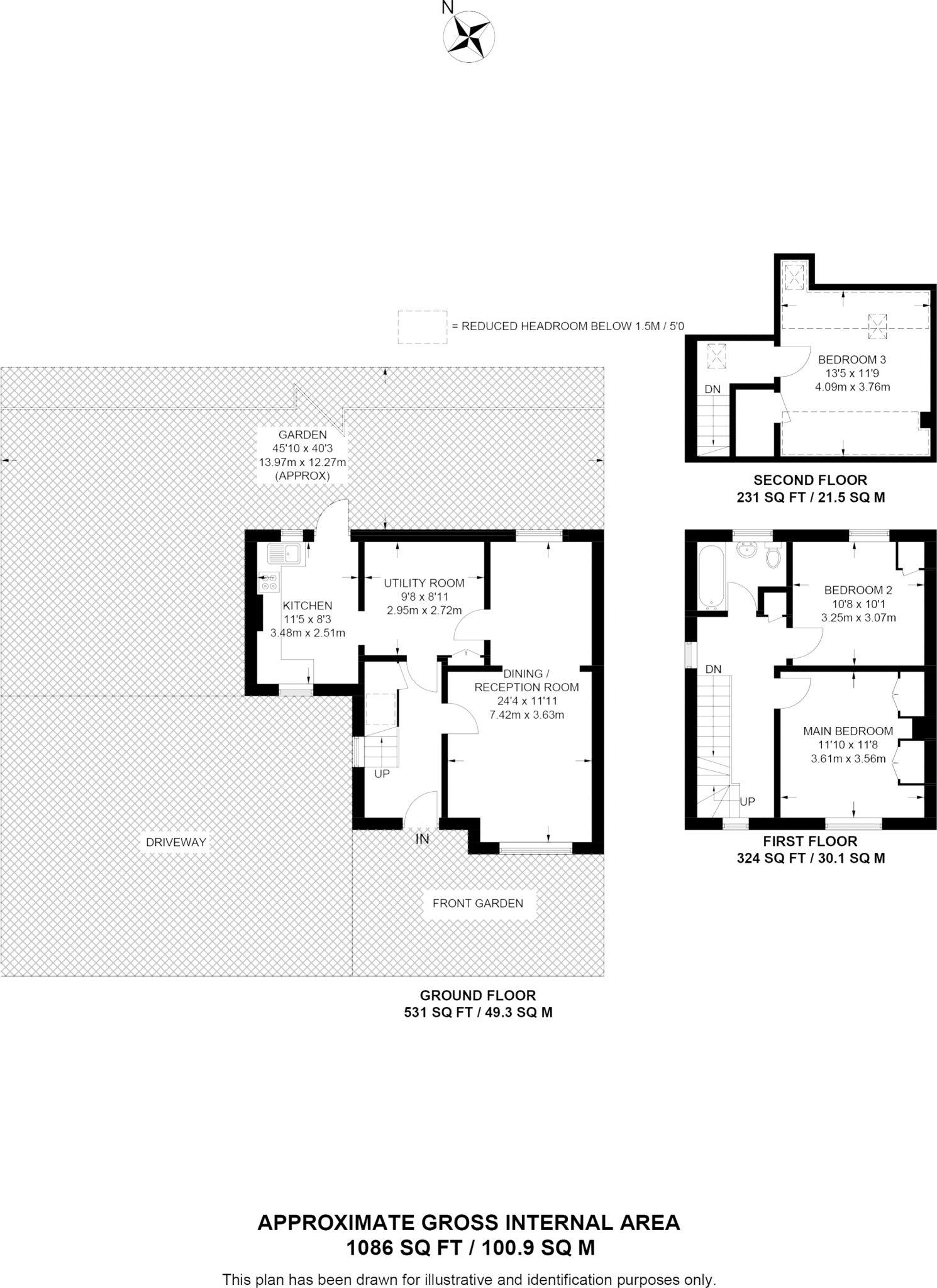
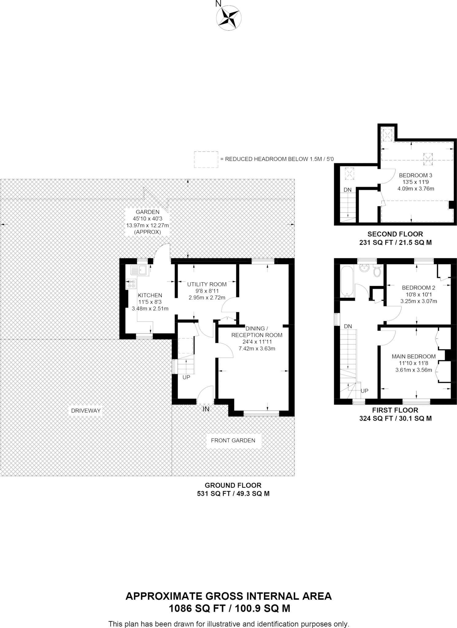
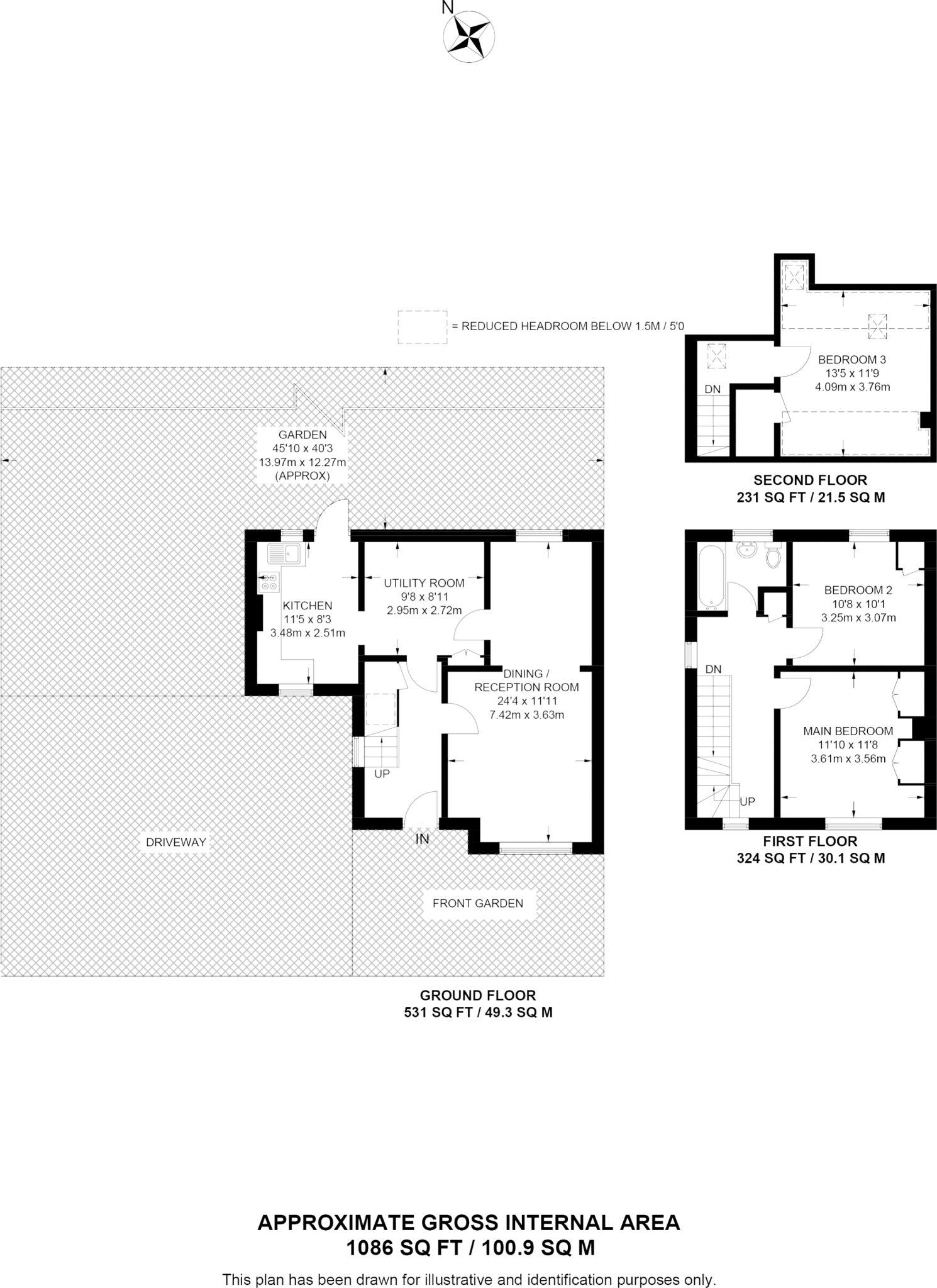
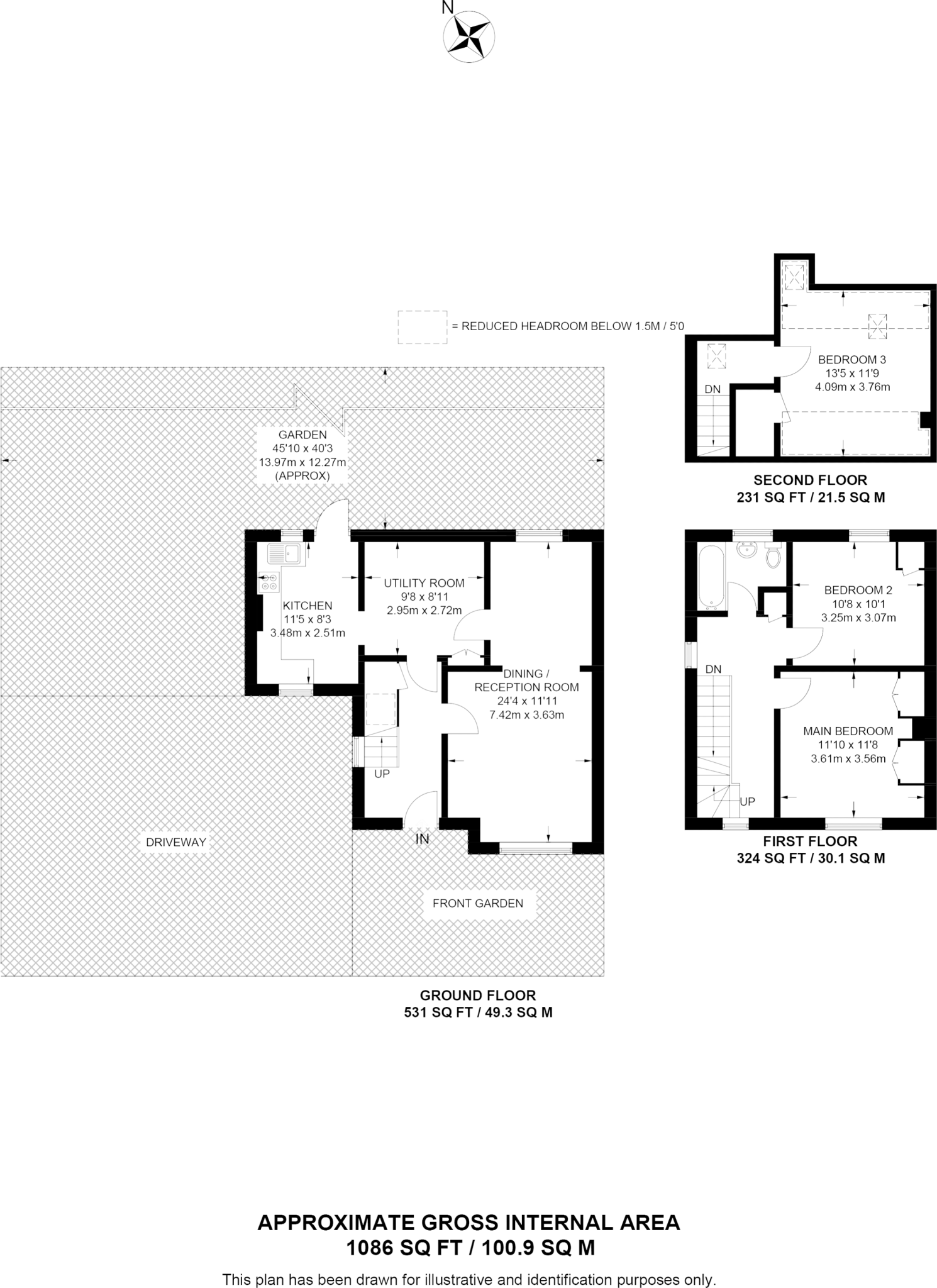
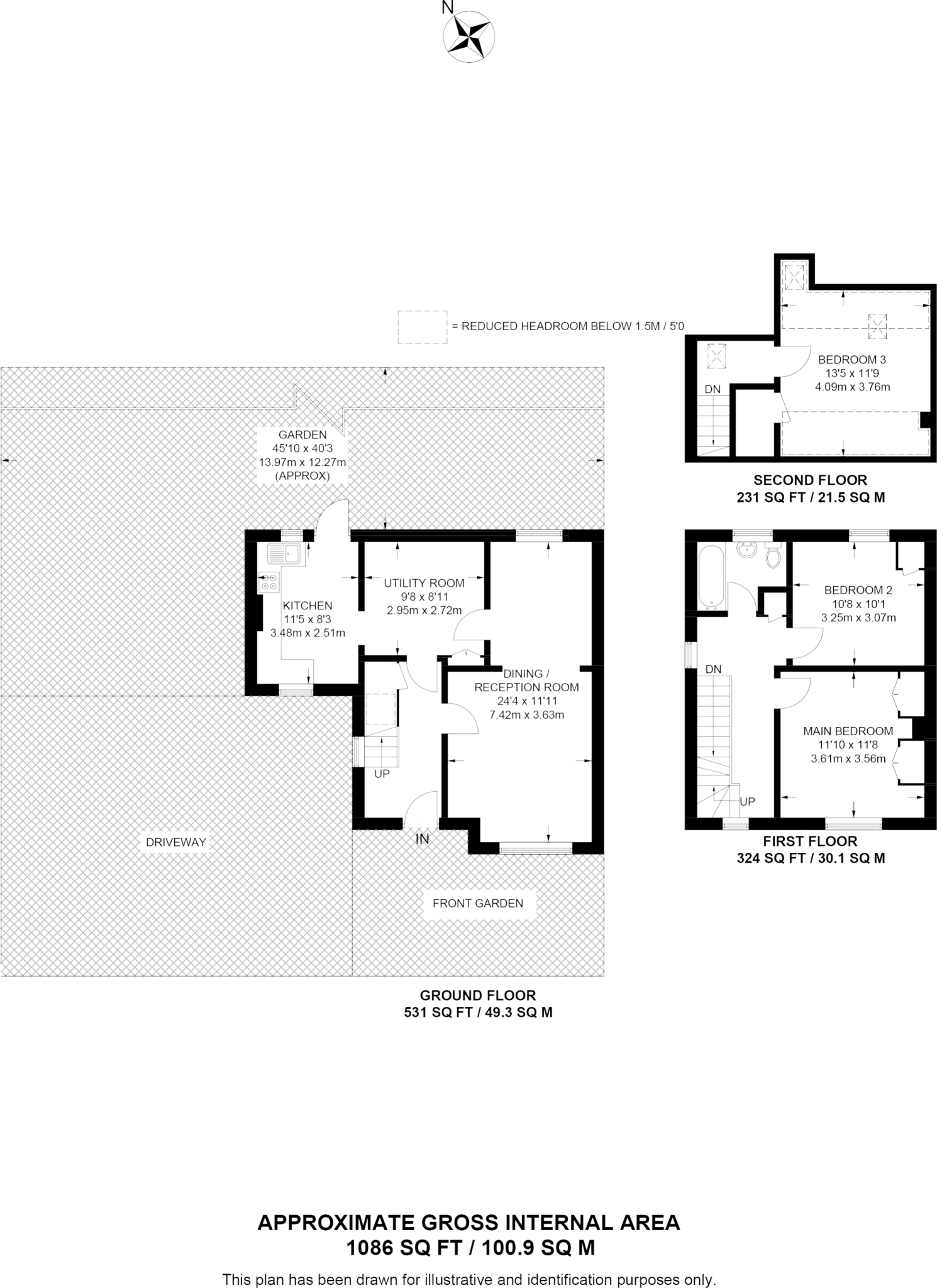
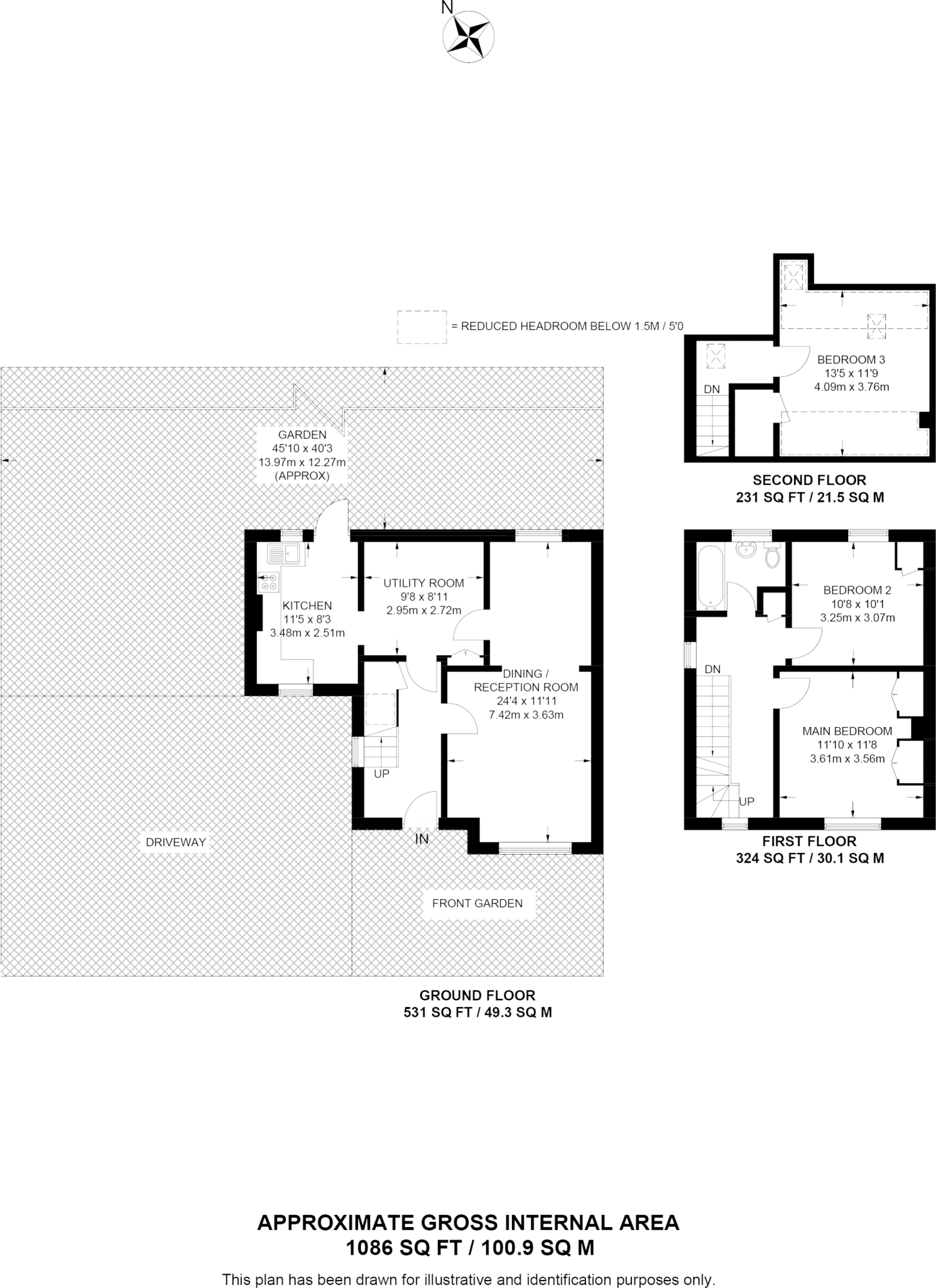
This semi‑detached three‑bedroom house on a substantial plot in Woolwich offers clear development upside for investors or developers. Planning permission is already granted to add a two‑storey dwelling, and lawful development approval exists for a loft conversion with a rear dormer to the existing building — rare practical permissions that shorten the build timetable.
The existing home is a comfortable 1930s semi with three generously sized bedrooms, one bathroom, front and rear gardens and off‑street parking. The kitchen is modern with white cabinets and wooden flooring; the property benefits from double glazing and gas central heating via boiler and radiators. The plot size and layout create scope to retain rental income while building or extending, or to deliver a short programme of works and resale.
Buyers should note practical considerations: the building’s cavity walls are assumed to be uninsulated, and there is only a single bathroom. The wider area shows higher deprivation levels, and local services reflect an inner‑city, established renting‑families demographic. Crime is average for the area. These factors affect rental yields, resale timing and specification required for family buyers.
Overall this freehold property is best suited to an investor or buyer aiming to add value through the approved schemes or light refurbishment. Excellent transport links, local amenities and a mix of good primary and secondary schools nearby support lettings and owner‑occupation once upgraded.
5 bedroom semi-detached house for sale in Moordown, London, SE18 — £830,000 • 5 bed • 1 bath • 1466 ft²
2 bedroom terraced house for sale in Brent Road, London, SE18 — £375,000 • 2 bed • 1 bath • 742 ft²
3 bedroom end of terrace house for sale in Moordown, Woolwich, London, SE18 — £525,000 • 3 bed • 1 bath • 847 ft²
4 bedroom terraced house for sale in Ritter Street, Woolwich, London, SE18 — £435,000 • 4 bed • 2 bath • 1149 ft²
4 bedroom terraced house for sale in Caldwell Close, London, SE18 — £650,000 • 4 bed • 3 bath • 1200 ft²
3 bedroom terraced house for sale in Burrage Road, London, SE18 — £575,000 • 3 bed • 1 bath • 1472 ft²


















































































































































































































































































































































































































































































































































































































































































































