Central two-bedroom listed mews with parking — ideal for first-time buyers or investors.
Grade II listed three-storey mews house in Abingdon town centre
Allocated off-street parking — rare for central location
Two bedrooms, two bathrooms across three compact floors
Long lease (~977–980 years) with zero ground rent
Service charge approx £2,166–£2,328 per year
EPC E; solid brick construction, likely limited insulation
No private garden; small courtyard/mews external space
Listing restricts alterations; may complicate upgrades
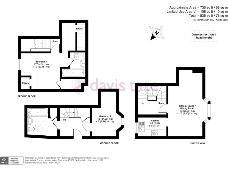
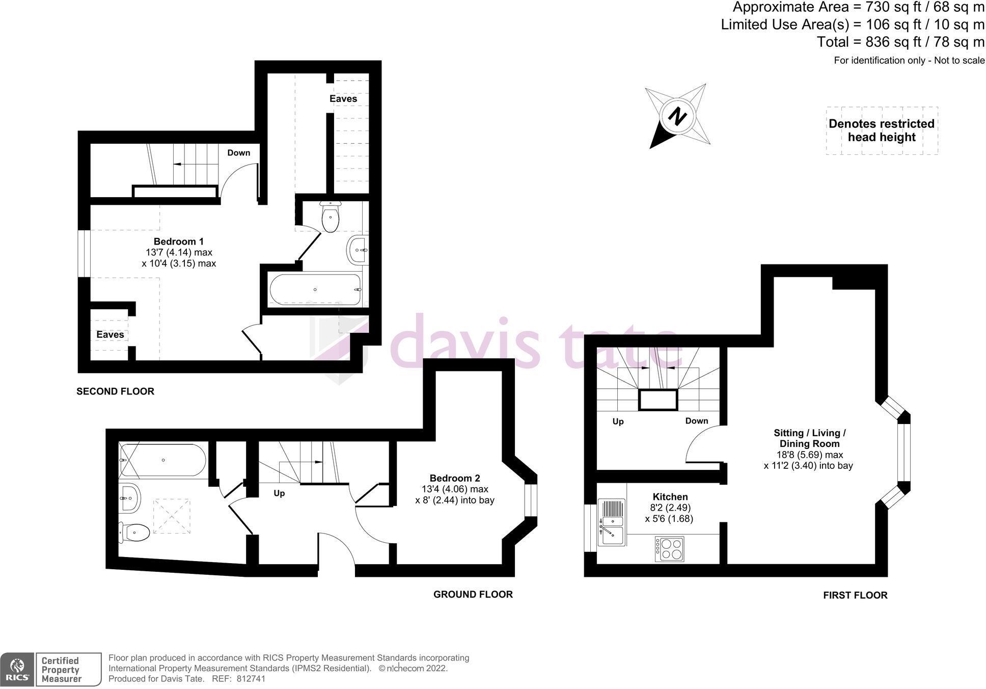
This Grade II listed three-storey mews house sits in the heart of Abingdon, offering immediate town-centre convenience and period character. Exposed beams, sash-style windows and a Tudor-style façade create a distinctive, historic home with an open-plan first-floor living/dining room and a compact, contemporary kitchen. Allocated off-street parking is a notable rarity for a central property.
Accommodation is compact but flexible across three levels: ground-floor bedroom/reception and bathroom, first-floor living/dining and kitchen, and second-floor main bedroom with en-suite. The footprint and modest room sizes suit a first-time buyer seeking a characterful entrance to the market or an investor targeting central lets; the property is chain-free with a long lease (circa 977–980 years) and zero ground rent.
Buyers should be aware of practical constraints: the Grade II listing restricts changes and may complicate alterations or energy-efficiency upgrades. The building is traditional solid brick with assumed minimal cavity insulation, the EPC is rated E, and ceilings and some rooms are modest in height and size. Annual service charges apply (around £2,166–£2,328) and the area records higher crime levels than average — factors to consider alongside the central location and excellent local amenities.
Overall this is a small, characterful town-centre mews house that offers convenience, parking and long-lease security. It will particularly appeal to buyers who prioritise location and historic charm and who accept the limitations and responsibilities of owning a listed property.
2 bedroom apartment for sale in West St. Helen Street, Abingdon, Oxfordshire, OX14 — £215,000 • 2 bed • 1 bath • 639 ft²
2 bedroom flat for sale in West St. Helen Street, Abingdon, OX14 — £215,000 • 2 bed • 1 bath • 649 ft²
3 bedroom house for sale in Bath Street, Abingdon, Oxfordshire, OX14 — £575,000 • 3 bed • 2 bath • 1568 ft²
2 bedroom apartment for sale in Old Station Yard, Abingdon, Oxfordshire, OX14 — £225,000 • 2 bed • 1 bath • 573 ft²
2 bedroom apartment for sale in Old Station Yard, Abingdon, OX14 — £250,000 • 2 bed • 2 bath • 728 ft²
3 bedroom semi-detached house for sale in St. Leonards Square, Wallingford, OX10 — £665,000 • 3 bed • 3 bath • 1719 ft²






















































