SG10 6BA - 6 bedroom detached house for sale in Exceptional Detached M…

View on Property Piper

6 bedroom detached house for sale in Exceptional Detached Modern Barn, Much Hadham, SG10

Summary - WYNCHES BARN MUCH HADHAM SG10 6BA

6 bed 3 bath Detached

Renovated six‑bed barn conversion on 1.55 acres with pond, paddock and high‑spec interiors.
6 double bedrooms, flexible multi-generational layout
Recently renovated to a high modern specification throughout
Large open-plan kitchen/dining with vaulted main living room
Gated 0.4 acre house plot plus 1.15 acre paddock and stable block
Deceptively large natural swimming pond—requires ongoing maintenance
Integral garage, brick store and private gated drive
Only 3 bathrooms for 6 bedrooms; may need more facilities
Hamlet location: private but requires car for services
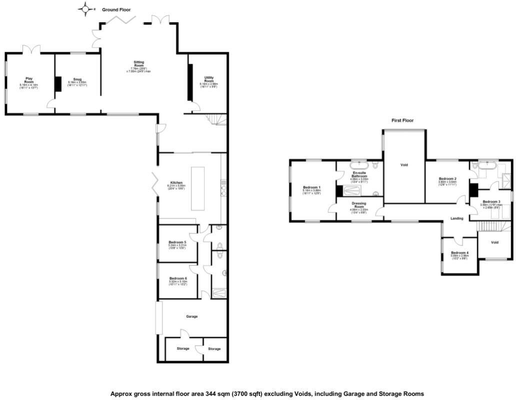
A striking renovated barn conversion set in 1.55 acres, this six-bedroom detached home blends contemporary finish with exposed timbers and vaulted ceilings. The light-filled ground floor offers an impressive vaulted living room, two further reception rooms and a large kitchen/dining space with sliding doors onto terraces — ideal for family life and entertaining. The ground floor also provides two bedrooms and a shower room, useful for multi-generational use or guest accommodation.

Externally the property sits within a gated 0.4‑acre house plot with landscaped gardens, terraces, specimen trees and a deceptively large natural swimming pond. Opposite the formal garden is a further 1.15‑acre paddock with a small stable block, offering scope for equestrian or amenity use. Practical additions include an integral garage, brick store and private drive.

Practical positives include freehold tenure, newly renovated high‑spec finishes throughout, fast broadband and excellent mobile signal. The hamlet location delivers privacy and attractive countryside views, but does mean services and shops are best reached by car. Note there are three bathrooms for six bedrooms and the natural pond and paddock will require ongoing maintenance and regular checks.

This home will suit buyers seeking a substantial family residence in a peaceful, affluent rural setting — particularly families wanting flexible accommodation, outdoor amenity or small-scale equestrian use. The balance of modern specification and barn character creates an adaptable property with immediate curb appeal and further potential to personalise.

Property Details

Brochure Descriptions

Image Descriptions

Rooms

Textual Property Features

Target Audience

AI Tags

Detected Visual Features

Nearby Schools

Nearest Bars And Restaurants

,,,,}

Nearest General Shops

,,}

Nearest Grocery shops

,,}

Nearest Supermarkets

,,}

Nearest Religious buildings

,,}

Nearest Medical buildings

,,,}

Nearest Airports

,,}

Nearest Leisure Facilities

,,,,}

Nearest Tourist attractions

,,}

Nearest Train stations

,,,,}

Nearest Bus stations and stops

,,,,}

Nearest Hotels

,,}

Tags

Local Market Stats

Similar Properties

Meta

High Res Images

Compatible Images

Low res Images

Thumbnails

Raw Images

High Res Floorplan Images

Compatible Floorplan Images

Low res Floorplan Images

FloorplanImages Thumbnail

Raw Floorplan Images