Chain-free home with balcony, gym and concierge in central Greenwich.
Chain‑free one‑bed with private balcony and modern finish
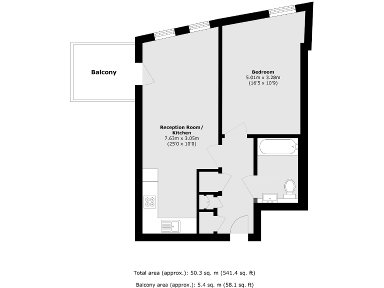
Open‑plan reception/kitchen maximises usable living space
Long lease: 989 years (no immediate lease concerns)
On‑site two‑level gym and 24‑hour concierge included
Service charge approximately £2,500 per year
Annual ground rent approximately £450
Heating supplied via a community scheme (check specifics)
Local area records higher crime and significant deprivation
This bright, chain‑free one‑bed apartment offers an efficient open‑plan layout and private balcony in a sought‑after Greenwich pocket. The well‑presented interiors include light wood‑effect floors, a contemporary fitted kitchen and a generous double bedroom — ideal for a first purchase or buy‑to‑let.
Residents benefit from on‑site amenities including a two‑level gym and 24‑hour concierge, plus excellent transport links via North Greenwich (Jubilee), Cutty Sark (DLR) and Maze Hill (mainline). The long lease (989 years) removes a common ownership worry and council tax is low, helping running costs.
Important practical points: the property is leasehold with an annual service charge of around £2,500 and ground rent near £450. Heating is via a community scheme, and the immediate area records higher crime levels and notable deprivation; buyers should consider safety and local context when viewing.
Overall this compact 541 sq ft flat maximises usable space and suits a first‑time buyer seeking a turn‑key home with strong transport and amenity access, or an investor looking for city‑centre rental demand. Confirm all running costs and local conditions prior to proceeding.
1 bedroom flat for sale in Telegraph Avenue, Greenwich, SE10 — £350,000 • 1 bed • 1 bath • 547 ft²
1 bedroom flat for sale in Telegraph Avenue, Greenwich, SE10 — £375,000 • 1 bed • 1 bath • 567 ft²
1 bedroom flat for sale in Telegraph Avenue, Greenwich, SE10 — £375,000 • 1 bed • 1 bath • 541 ft²
1 bedroom apartment for sale in Telcon Way, London, SE10 — £375,000 • 1 bed • 1 bath • 558 ft²
1 bedroom apartment for sale in Cable Walk, Greenwich, SE10 — £350,000 • 1 bed • 1 bath • 499 ft²
1 bedroom apartment for sale in Rennie Street, Greenwich, SE10 — £350,000 • 1 bed • 1 bath • 580 ft²






































