**Standout Features:**
- Exclusive owners' lounge with a coffee bar
- Guest suite for visitors
- Landscaped gardens for relaxation and socializing
- Modern, fitted kitchen with integrated appliances
- Walk-in wardrobe in the main bedroom
- 24-hour call center support and secure camera entry system
- Lodge manager on-site
**Summary:**
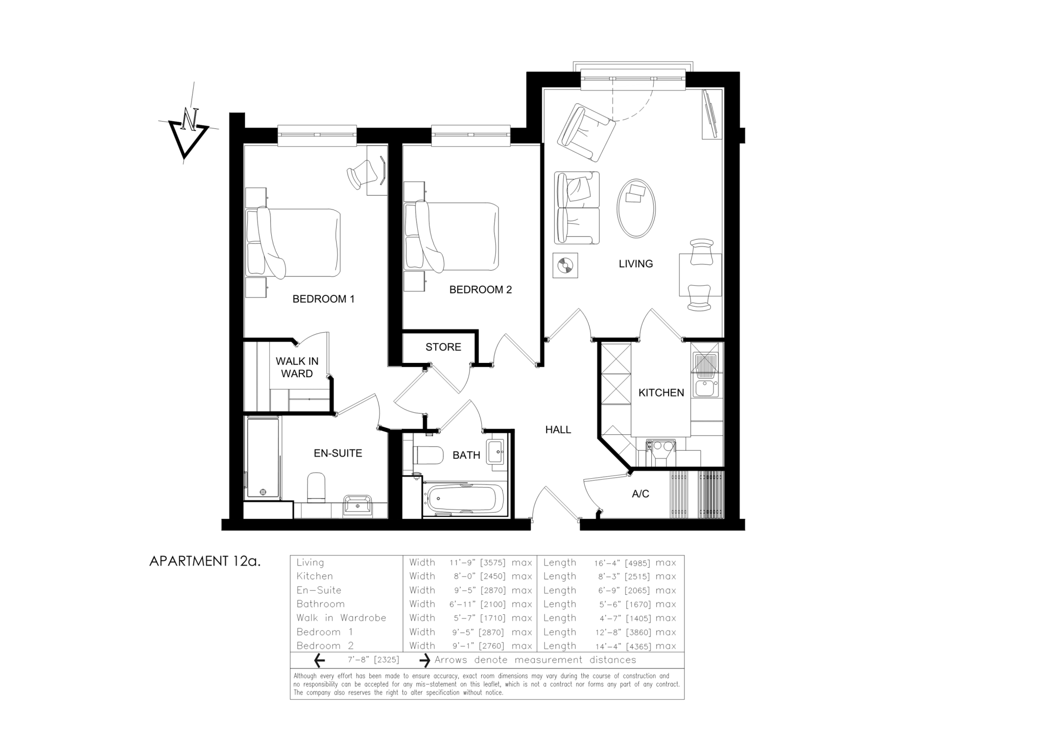
Welcome to this delightful two-bedroom ground flat designed exclusively for the over 60s, offering a blend of comfort, security, and modern living. This new build apartment features an inviting owners' lounge with a coffee bar, perfect for socializing, and a guest suite for visiting friends and family. Enjoy the beautifully landscaped gardens maintained for your convenience. The modern kitchen boasts sleek, fitted cabinetry and integrated appliances, while the living space is spacious and bright, ideal for relaxation.
The property includes an en-suite bathroom and a practical walk-in wardrobe in the main bedroom, ensuring ample storage without sacrificing style. With energy-efficient heating and a 24-hour support system, peace of mind is ensured. While the property fits perfectly into a serene suburban lifestyle, be aware that it is located in a small town with average crime rates and average broadband speeds.
Priced at £477,950, this residence represents a fantastic opportunity for those seeking a secure and comfortable retirement haven. Secure your future in this beautiful community—properties like this won’t last long!
1 bedroom flat for sale in High Street, Staplehurst, Kent, TN12 — £343,950 • 1 bed • 1 bath • 507 ft²
2 bedroom cottage for sale in High Street, Staplehurst, Kent, TN12 — £521,950 • 2 bed • 2 bath • 752 ft²
2 bedroom apartment for sale in Annison Street, Tonbridge, Kent, TN9 — £583,950 • 2 bed • 1 bath
1 bedroom apartment for sale in Staplehurst, Kent, TN12 — £343,950 • 1 bed • 1 bath • 374 ft²
2 bedroom apartment for sale in Staplehurst, Kent, TN12 — £477,950 • 2 bed • 2 bath • 612 ft²
2 bedroom flat for sale in High Street, Staplehurst, Tonbridge, Kent, TN12 — £477,950 • 2 bed • 1 bath






































