DN5 7SL - 4 bedroom house for sale in High Trees, Main Street, Cadeby…

View on Property Piper

4 bedroom house for sale in High Trees, Main Street, Cadeby, Doncaster, DN5

Summary - HIGH TREES MAIN STREET CADEBY DONCASTER DN5 7SL

4 bed 4 bath House

High-spec four-bed detached home with panoramic rural views and double garage.
Nearly 4,000 sq ft high-spec family accommodation
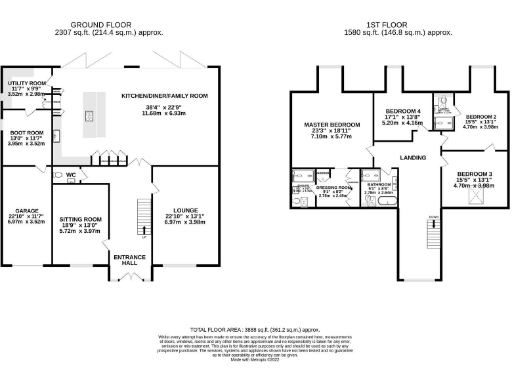
Set on the edge of open countryside in Cadeby, this substantial four-bedroom detached home offers nearly 4,000 sq ft of high-spec family accommodation and panoramic views to three sides. The property’s heart is a large open-plan living/dining/kitchen with a log burner and bifold doors leading to a generous patio, sheltered hot tub area and enclosed lawns — ideal for family entertaining and country living.

Accommodation is arranged over multiple floors and includes two formal reception rooms, a large entrance hall, utility, boot room and ground-floor WC. The first floor houses a principal bedroom with dressing area plus further double bedrooms and shower/bath facilities. Practical benefits include a double garage and ample driveway parking on a large private plot.

Note the property’s semi-rural position: good road links are reported but the home sits in a village setting, so broadband and mobile signals are average. Heating is via a boiler with underfloor heating running on LPG fuel, which suits rural connections but may be costlier than mains gas. Local crime is reported above average for the area — buyers should consider security and insurance implications.

Offered freehold at £795,000, this is a compelling option for a large family seeking high-spec, county-edge living with generous indoor and outdoor space, but buyers should factor in running costs and connectivity limits typical of rural locations.

Property Details

Brochure Descriptions

Image Descriptions

Floorplan Description

Rooms

Textual Property Features

Target Audience

AI Tags

Detected Visual Features

EPC Details

Nearby Schools

Nearest Bars And Restaurants

,,,,}

Nearest General Shops

,,}

Nearest Grocery shops

,,}

Nearest Supermarkets

,,}

Nearest Religious buildings

,,}

Nearest Medical buildings

,,,}

Nearest Airports

}

Nearest Leisure Facilities

,,,,}

Nearest Tourist attractions

,,}

Nearest Train stations

,,,,}

Nearest Bus stations and stops

,,,,}

Nearest Hotels

,,}

Tags

Local Market Stats

Similar Properties

Meta

High Res Images

Compatible Images

Low res Images

Thumbnails

Raw Images

High Res Floorplan Images

Compatible Floorplan Images

Low res Floorplan Images

FloorplanImages Thumbnail

Raw Floorplan Images