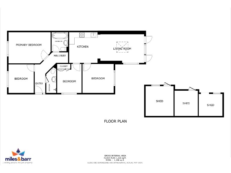
Single-level family home with large garden and garage near the beach.
Four bedrooms, single-storey living ideal for family accessibility
A spacious single-storey home on a large plot a short stroll from Whitstable’s shingle beach. The semi‑detached bungalow offers four bedrooms, an open-plan living area with sliding doors to the garden, and a modern kitchen — arranged for comfortable family living on one level. The property is freehold, built in the 1980s, with mains gas central heating and double glazing (installation date unknown).
Outside there is generous private garden space, a garage and off-street parking. A fixed swimming pool is a standout feature for summer entertaining but it currently requires remedial works; factor in repair or removal costs when considering the purchase. The house is described as well presented internally, though buyers should check the glazing age and any general maintenance given the property’s age (constructed c.1983–1990).
Positioned in a quiet residential street and within easy reach of local schools, shops and transport links, this bungalow suits families who want single‑level living near the coast. Broadband is reported fast and there is no flood risk. The layout and plot also provide potential for garden improvements or modest extension subject to planning, for buyers wanting to add value.
3 bedroom bungalow for sale in Macdonald Parade, Whitstable, CT5 — £440,000 • 3 bed • 1 bath • 1025 ft²
4 bedroom detached house for sale in Gloucester Road, Whitstable, Kent, CT5 — £875,000 • 4 bed • 2 bath • 1830 ft²
2 bedroom bungalow for sale in Green Leas, Chestfield, Whitstable, Kent, CT5 — £400,000 • 2 bed • 1 bath • 517 ft²
3 bedroom bungalow for sale in Highgate Road, Whitstable, Kent, CT5 — £325,000 • 3 bed • 1 bath • 894 ft²
3 bedroom bungalow for sale in Kite Farm, Whitstable, Kent, CT5 — £475,000 • 3 bed • 1 bath • 980 ft²
2 bedroom bungalow for sale in Baliol Road, Whitstable, CT5 — £375,000 • 2 bed • 2 bath • 570 ft²






























































