Affordable, well-connected home with loft potential for first-time buyers or landlords.
Driveway with off-street parking for one to two cars
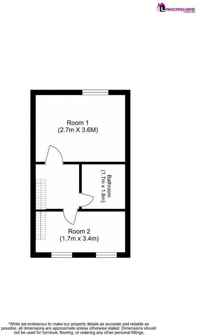
Freehold two-bedroom terraced house with loft conversion
Private rear garden — small but usable for children or seating
667 sq ft total; compact rooms and economical footprint
Fast broadband and excellent mobile signal for remote work
Close to buses, Belle Vue station, shops and supermarkets
Area shows high deprivation; consider wider neighbourhood factors
Requires some modernization; check loft consent and fittings
Set on a quiet close in Belle Vue, this freehold two-bedroom terraced house includes a usable loft room and private rear garden. The compact 667 sq ft layout is economical and straightforward, with a paved driveway offering off-street parking. Good mobile signal and fast broadband make the home practical for remote working or modern living.
The location is well served by buses and nearby Belle Vue station, with easy access to Manchester city centre, shops and supermarkets on Hyde Road and Stockport Road. Local schools (including some Outstanding-rated options) and community amenities are within walking distance, which will suit first-time buyers or buy-to-let investors seeking tenant demand.
Accommodation is modest and will benefit from cosmetic updating in places — kitchens, bathrooms and general finishes are areas where improvement will add value. The loft conversion provides flexible space but buyers should confirm its status and any building consents. Note the area records high deprivation levels, though the property itself sits in a very low-crime street.
Practical positives include Freehold tenure, Council Tax Band A (very cheap), no flood risk and a small private garden for children or outdoor storage. Buyers wanting a move-in-perfect home may need to budget for modernization; investors will find rental potential in this well-connected, affordable pocket of Manchester.
2 bedroom terraced house for sale in Matlock Street, Eccles, M30 — £180,000 • 2 bed • 1 bath • 819 ft²
2 bedroom end of terrace house for sale in Pilling Street, Manchester, M34 — £165,000 • 2 bed • 1 bath • 891 ft²
3 bedroom end of terrace house for sale in Blackcarr Road, Manchester, M23 — £300,000 • 3 bed • 2 bath • 1178 ft²
3 bedroom terraced house for sale in Hale Lane, Failsworth, Manchester, Greater Manchester, M35 — £245,000 • 3 bed • 1 bath • 1151 ft²
2 bedroom terraced house for sale in Longden Road, Longsight, M12 — £190,000 • 2 bed • 1 bath • 771 ft²
2 bedroom semi-detached house for sale in Duke Road, Newton, Hyde, SK14 — £259,000 • 2 bed • 1 bath • 1162 ft²






































































