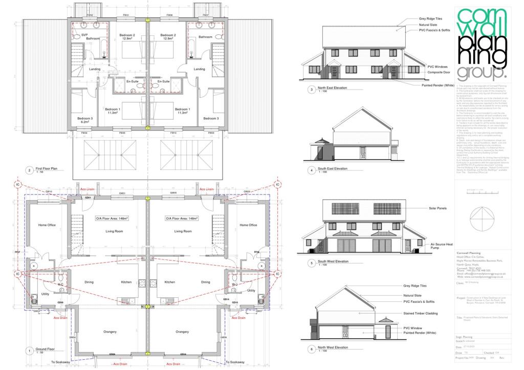
Conditional consent granted to build two contemporary three‑bed homes on a large village plot.
Freehold large plot with distant coastal and rolling countryside views
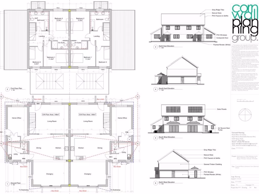
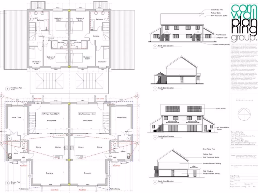
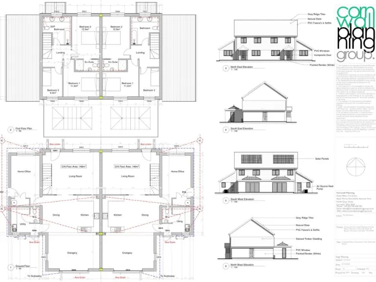
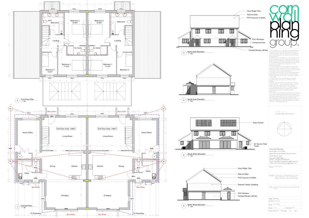
A rare building plot in St Buryan with conditional permission to create two contemporary semi‑detached three‑bed homes. The site sits on a large plot with far-reaching Cornish countryside views and a distant coastal outlook, offering clear development potential close to popular beaches and village amenities.
Permission (PA23/9302) covers two three‑bed houses with ground‑floor living space, office, utility and orangery, plus parking. The freehold plot benefits from excellent mobile and fast broadband connectivity, low crime, and village services (shop, pub, farm shop, café) that support lettability or owner‑occupation.
Important practical points: planning is conditional, so buyers must satisfy the stated conditions and factor build costs, lead‑in times and statutory approvals into their budgets. The location is rural with an ageing local population profile, which may affect rental demand mix and local services. Council tax banding is unknown and utilities/connection specifics should be verified before purchase.
This opportunity suits a small developer or private buyer wanting to build contemporary family homes in a coastal‑proximate village. The plots offer scope for energy‑efficient design and good resale or rental prospects, provided the purchaser manages the planning conditions and construction programme responsibly.
Land for sale in Parc An Peath, St Buryan, Penzance, TR19 — £225,000 • 1 bed • 1 bath
Residential development for sale in Land Off Kew Pendra Close, St. Buryan, Penzance, Cornwall, TR19 6DP, TR19 — £750,000 • 1 bed • 1 bath
Plot for sale in St Just, Penzance, TR19 — £200,000 • 1 bed • 1 bath
Plot for sale in Building Plot at Levant, Trewellard, St Just, TR19 7SR, TR19 — £150,000 • 3 bed • 2 bath
Land for sale in Crowlas, Penzance, TR20 — £265,000 • 1 bed • 1 bath
Plot for sale in Boscaswell Village, Pendeen TR19 — £165,000 • 1 bed • 1 bath






































