BN3 7GX - 3 bed hove three bedroom semi in Florence Avenue, BN3 7GX

View on Property Piper

3 bedroom semi-detached house for sale in Florence Avenue,Hove,BN3 7GX, BN3

Summary - 3 FLORENCE AVENUE HOVE BN3 7GX

3 bed 1 bath Semi-Detached

Chain-free three-bed with driveway and garden — great refurbishment opportunity in West Hove..
- Chain-free three-bedroom semi-detached house
- Driveway parking and gated side access to rear garden
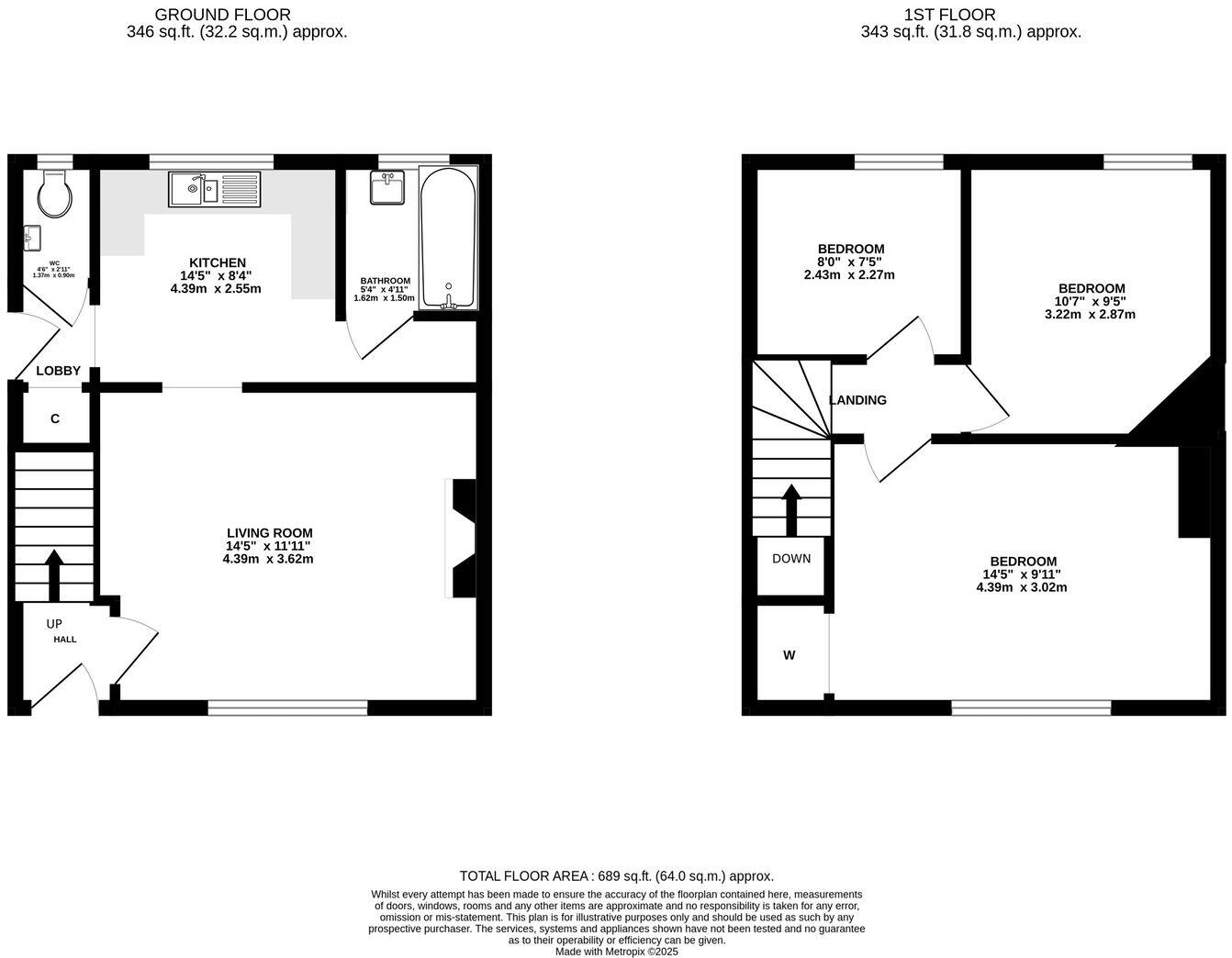
- Small overall size (approx 689 sq ft) with six rooms
- Needs renovation throughout; budget for systems and cosmetic works
- Potential to convert a bedroom to a bathroom (subject to planning)
- Freehold tenure, end of chain for quicker completion
- Fast broadband and excellent mobile signal on site
- Local area: above-average crime and higher deprivation indices
A chain-free three-bedroom semi-detached house in West Hove offering clear scope to add value. The house sits on a small plot with gated side access, a rear garden and private driveway parking — practical assets in this area. Internally the house measures about 689 sq ft with a living room, kitchen, ground-floor bathroom and separate WC, plus three first-floor bedrooms.

The property needs renovation throughout: cosmetic and likely systems work are required, and rooms are generally small. There is potential to convert one bedroom into a second bathroom subject to usual planning criteria, which would improve family practicality and resale value. Buyers should allow time and budget for refurbishment rather than expecting a move-in-ready home.

Local conveniences include fast broadband, excellent mobile signal, nearby bus links and several well-rated schools (including an Outstanding infant school and Good secondaries). Note the immediate area has higher-than-average crime and significant deprivation indicators, which may affect long-term resale and should be considered alongside purchase and renovation plans.

This home will suit a first-time buyer or small family prepared to renovate, or an investor targeting a refurbishment project in a popular West Hove/Portslade location. Sold freehold and chain-free, it offers a straightforward purchase route for buyers ready to personalize and improve the property.

Property Details

Image Descriptions

Floorplan Description

Rooms

Textual Property Features

Target Audience

AI Tags

Detected Visual Features

Nearby Schools

Nearest Bars And Restaurants

,,,,}

Nearest General Shops

,,}

Nearest Grocery shops

,,}

Nearest Supermarkets

,,}

Nearest Religious buildings

,,}

Nearest Medical buildings

,,,}

Nearest Leisure Facilities

,,,,}

Nearest Tourist attractions

,,}

Nearest Train stations

,,,,}

Nearest Bus stations and stops

,,,,}

Nearest Hotels

,,}

Tags

Local Market Stats

AirBnB Data

Similar Properties

Meta

High Res Images

Compatible Images

Low res Images

Thumbnails

Raw Images

High Res Floorplan Images

Compatible Floorplan Images

Low res Floorplan Images

FloorplanImages Thumbnail

Raw Floorplan Images