**Standout Features:**
- Character-filled semi-detached home dating back to 1700
- Four spacious bedrooms and three bathrooms
- Open-plan kitchen, dining, and lounge area with period features
- Separate annex with potential for office or guest accommodation
- Expansive courtyard garden with unique charm and development potential
- Freehold property with moderate council tax
- Convenient access to major motorways and national train lines
- Nearby reputable schools with good and outstanding Ofsted ratings
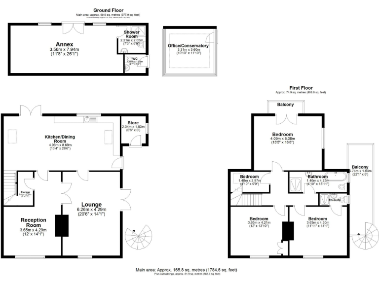
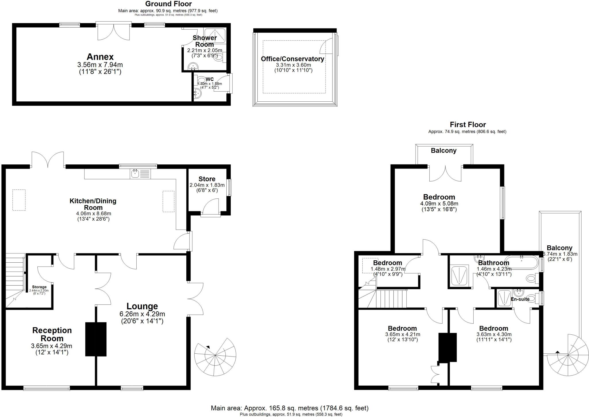
Nestled in the historic charm of WF3 4AH, this enchanting 1700s semi-detached home offers a seamless blend of traditional character and modern comforts. The inviting open-plan layout features exposed beams and stonework that enhance the home’s unique warmth, while the well-equipped kitchen provides ample space for culinary enthusiasts and entertaining guests. Upstairs, four generously sized bedrooms include a tranquil primary suite with a delightful balcony, creating your ideal retreat.
Adding to the property’s allure, a versatile annex with its own shower room presents endless possibilities, whether as a home office, guest suite, or independent living space for extended family. Outside, a large gated courtyard garden invites you to indulge in its organic beauty, perfect for relaxation and outdoor gatherings.
Opportunity awaits with potential development of the land, subject to planning, which enhances this family-oriented home that is also well-suited for investors or those seeking multigenerational living. With good schools nearby and convenient transport links at your doorstep, this property combines comfort, flexibility, and potential in one unique offering. Don’t miss your chance to own this rare gem—schedule a viewing today!
5 bedroom detached house for sale in Church Croft, Lofthouse, Wakefield, West Yorkshire, WF3 — £675,000 • 5 bed • 4 bath • 1667 ft²
5 bedroom house for sale in Moorland Place, Stanley, Wakefield, West Yorkshire, WF3 — £595,000 • 5 bed • 2 bath • 2067 ft²
5 bedroom detached house for sale in Horbury Road, Ossett, WF5 — £550,000 • 5 bed • 2 bath • 2809 ft²
5 bedroom detached house for sale in Aberford Road, Stanley, Wakefield, West Yorkshire, WF3 — £1,400,000 • 5 bed • 1 bath • 7841 ft²
4 bedroom semi-detached house for sale in 2 Foulby Farm, Doncaster Road, Foulby, Wakefield, West Yorkshire, WF4 — £799,950 • 4 bed • 3 bath • 3035 ft²
3 bedroom semi-detached house for sale in Forge Lane, Liversedge, WF15 — £280,000 • 3 bed • 2 bath • 1216 ft²






































































































































































