**Standout Features:**
- Spacious four-bedroom terraced house on a large corner plot
- Potential for extension (subject to planning permission)
- Chain-free sale for a quick purchase
- Downstairs WC and large living room
- Close proximity to sought-after schools and transport links
**Concerns:**
- Requires modernization
- Mid-20th-century construction with partial insulation
- High crime rate in the area
- Small overall size (733 sq ft)
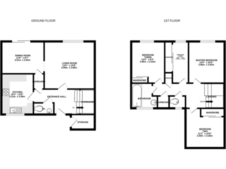
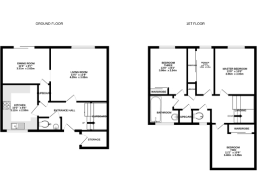
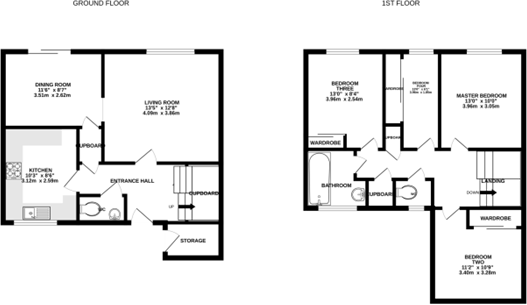
Discover the charm and potential of this spacious four-bedroom terraced home located in the sought-after Wildridings area. Boasting a generous corner plot, this property offers significant extension possibilities, perfect for families looking to grow. The ground floor features a comfortable living space with a large 13'5 living room, a dining area, kitchen, and convenient downstairs WC. Venture upstairs to find four well-proportioned bedrooms along with a family bathroom and separate WC.
With no onward chain, this home is ready for you to make it your own and create the perfect family sanctuary. Enjoy easy access to the town center, Bracknell mainline train station, and local amenities, as well as proximity to highly-rated schools like Wildridings Primary and The Brakenhale Secondary School. While the property does require some modernization and is located in an area with a high crime rate, the excellent broadband speeds and mobile coverage provide modern-day conveniences that can enhance your living experience. Don’t miss the chance to secure this uniquely promising property, ideal for families or investors looking for value and opportunity in a rapidly developing area.
4 bedroom end of terrace house for sale in Arncliffe, Bracknell, RG12 — £350,000 • 4 bed • 1 bath • 1109 ft²
3 bedroom terraced house for sale in Ingleton, Bracknell, Berkshire, RG12 — £370,000 • 3 bed • 1 bath • 706 ft²
4 bedroom end of terrace house for sale in Ashbourne, Bracknell, Berkshire, RG12 — £365,000 • 4 bed • 2 bath • 1032 ft²
3 bedroom terraced house for sale in Greenhow, Bracknell, Berkshire, RG12 — £350,000 • 3 bed • 1 bath • 1037 ft²
4 bedroom semi-detached house for sale in The Green, Bracknell, Berkshire, RG12 — £480,000 • 4 bed • 2 bath • 1661 ft²
3 bedroom end of terrace house for sale in Keldholme, Bracknell, Berkshire, RG12 — £300,000 • 3 bed • 1 bath • 565 ft²


















































