**Standout Features:**
- Modern semi-detached townhouse
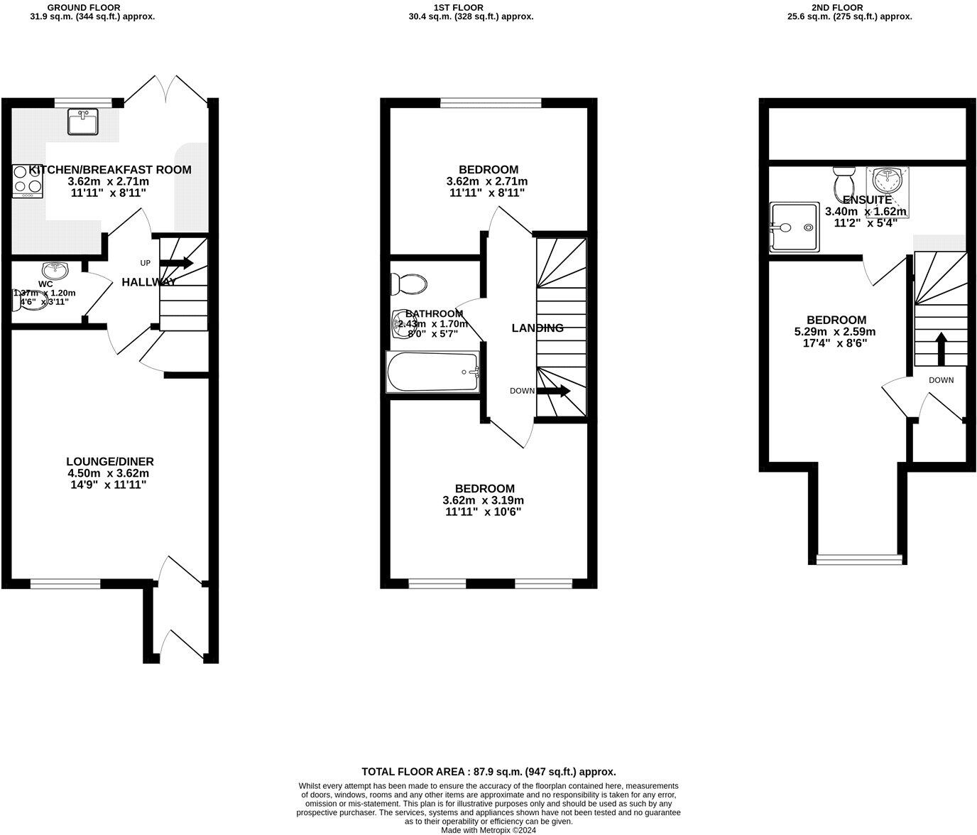
- 3 double bedrooms including a master with ensuite
- Spacious lounge/diner (4.5m x 3.62m)
- Well-appointed kitchen and family bathroom
- Private rear garden (approx. 42' x 16') with patio
- Off-street parking for 2 vehicles
- Just 0.4 miles to Swanley station with direct London links
- Low crime area with fast broadband and excellent mobile signal
- Located in a well-regarded family-friendly neighborhood
**Potential Downsides:**
- Small plot size may limit outdoor space.
- Some nearby views are primarily of residential surroundings.
**Summary:**
Discover this beautifully presented modern semi-detached townhouse, ideally suited for families and first-time buyers alike. With 3 double bedrooms and a guest-friendly layout, this home boasts a luxurious master ensuite and an immaculate family bathroom. The open-plan lounge/diner and bright contemporary kitchen create an ideal space for both relaxation and entertaining. Step outside to your neatly landscaped garden, where the paved patio leads to a lush green lawn—a perfect haven for children or pets.
Situated in the sought-after Downsview development, you will enjoy the convenience of being just a short walk from Swanley mainline station, offering quick access to London. With excellent schools nearby and an inviting community atmosphere, this property is a rare find in a vibrant area. Act quickly—properties in this desirable location don’t stay on the market for long!
3 bedroom end of terrace house for sale in Braeburn Close, Swanley, Kent, BR8 — £425,000 • 3 bed • 2 bath • 740 ft²
3 bedroom semi-detached house for sale in West View Road, Swanley, BR8 — £525,000 • 3 bed • 2 bath • 1248 ft²
3 bedroom semi-detached house for sale in Discovery Drive, Swanley, Kent, BR8 — £450,000 • 3 bed • 2 bath • 938 ft²
3 bedroom semi-detached house for sale in Willow Avenue, Swanley, Kent, BR8 — £475,000 • 3 bed • 1 bath • 1135 ft²
3 bedroom end of terrace house for sale in Moultain Hill, Swanley, Kent, BR8 — £395,000 • 3 bed • 1 bath • 992 ft²
3 bedroom terraced house for sale in Cherry Avenue, Swanley, Kent, BR8 — £350,000 • 3 bed • 1 bath • 768 ft²






















































































