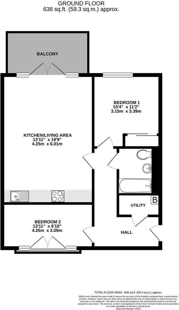
**Standout Features:**
- Modern two-bedroom apartment in an exclusive development
- Open plan kitchen and living area with stylish finishes
- Private balcony with views over landscaped gardens
- Allocated undercroft parking space
- Double-glazed windows for energy efficiency
- Convenient access to West Drayton High Street and transport links
**Potential Downsides:**
- Annual service charge: £2,950
- Limited local school ratings, with some requiring improvement
Step into your new modern lifestyle with this appealing two-bedroom apartment, ideally set within a sought-after development. Its spacious open plan design seamlessly merges the kitchen and living area, fostering a bright and welcoming environment—perfect for entertaining guests or cozy nights in. Enjoy the tranquility of your private balcony overlooking beautifully landscaped gardens. The property features two generously sized bedrooms and a contemporary family bathroom, complemented by allocated parking for added convenience.
Location is key, with excellent transport links just a stone's throw away, making commutes to central London and Heathrow effortless. While local schools have mixed ratings, the potential for improvement in the neighborhood, coupled with thriving local amenities, ensures you're investing in a community with promise. This chain-free, leasehold apartment offers a rare opportunity at a competitive price—don't miss out on making this modern living space your own!
2 bedroom apartment for sale in Pennyroyal Drive, West Drayton, UB7 — £355,000 • 2 bed • 2 bath • 735 ft²
2 bedroom apartment for sale in Windsor Court, West Drayton, UB7 — £335,000 • 2 bed • 2 bath • 685 ft²
2 bedroom apartment for sale in Wintergreen Boulevard, West Drayton, UB7 — £320,000 • 2 bed • 2 bath • 781 ft²
2 bedroom apartment for sale in Wraysbury Drive, Yiewsley,, UB7 — £269,000 • 2 bed • 2 bath • 733 ft²
2 bedroom apartment for sale in Otter Way, Yiewsley, West Drayton, UB7 — £375,000 • 2 bed • 2 bath • 712 ft²
2 bedroom apartment for sale in Wintergreen Boulevard, West Drayton, UB7 — £350,000 • 2 bed • 2 bath • 714 ft²










































