Bright, low-maintenance one-bedroom apartment with parking and strong storage.
One double bedroom with built-in wardrobes
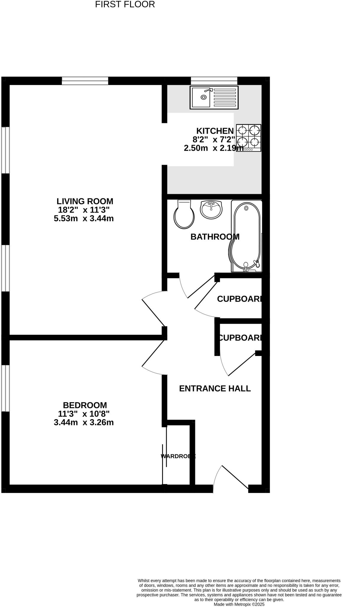
Set within the Vyne Park development, this bright one-bedroom apartment delivers efficient modern living with surprisingly generous storage. The dual-aspect living room feels larger than the overall footprint suggests, while the bedroom benefits from built-in wardrobes and ample hallway cupboards — a rare plus in similar new-build flats.
Practical features include a fitted kitchen with integrated appliances, an updated bathroom, allocated off-street parking and bike storage. The property is chain free and sits back from the road overlooking landscaped grounds and a wooded copse, providing a calm outlook within easy reach of Basingstoke, the M3 and local amenities.
Do note this is a leasehold flat: 121 years remain and the annual service charge is around £2,200 (buyers should confirm exact service charge and any ground rent reviews with their solicitor). The overall internal area is modest (circa 384 sq ft) and there is no private garden, so the home suits a first-time buyer, downsizer, or investor seeking a low-maintenance rental.
EPC B (84) and mains gas central heating give reasonable running costs. The neighbourhood classification indicates mixed socioeconomic indicators and average local crime; check travel times and local services if school performance or wider area factors are a priority.
2 bedroom flat for sale in Aurum Green Avenue, Chineham, Basingstoke, Hampshire, RG24 — £285,000 • 2 bed • 1 bath • 583 ft²
1 bedroom flat for sale in Lillymill Chine, Chineham, Basingstoke, RG24 — £200,000 • 1 bed • 1 bath • 414 ft²
1 bedroom apartment for sale in Corbel Rise, Chineham, Basingstoke, RG24 — £190,000 • 1 bed • 1 bath • 709 ft²
1 bedroom flat for sale in Shrivenham Walk, Basingstoke, RG24 — £160,000 • 1 bed • 1 bath • 433 ft²
2 bedroom ground floor flat for sale in Richards Field, Chineham, RG24 — £210,000 • 2 bed • 1 bath • 659 ft²
1 bedroom apartment for sale in Skippetts Gardens, Basingstoke, Hampshire, RG21 — £150,000 • 1 bed • 1 bath • 424 ft²


































