Renovated four-bed bungalow with large garden, double garage and short stroll to Abersoch beach.
Renovated four-bedroom detached bungalow with open-plan living
Short walk to Abersoch harbour, main beach and village amenities
Large lawned garden, private patio and cul-de-sac position
Detached double garage; garage houses utility, oil boiler and tank
Option to buy beach hut separately by negotiation
Oil-fired central heating — fuel costs to consider
Council Tax Band G — relatively expensive for buyers
Located in an area with higher deprivation statistics
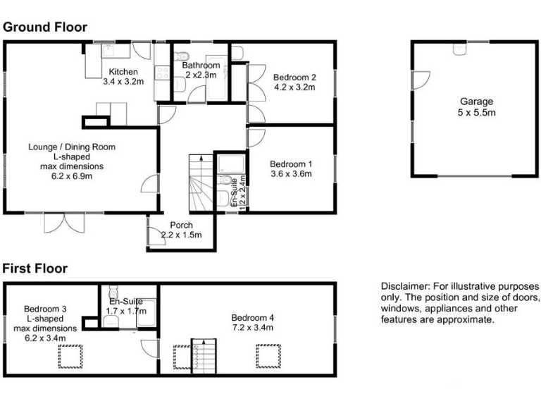
Set just off White House Drive in a quiet cul-de-sac, this renovated four-bedroom detached bungalow offers comfortable single-level living with versatile space. The interior has been opened up to create a bright, sociable living area with a log burner, while two generous bedrooms include an en-suite shower room. The home suits buyers seeking low-stair living close to seaside amenities.
Outside, a large lawned garden and patio give private outdoor living and entertaining space. Private off-street parking for multiple vehicles and a substantial detached double garage provide generous storage; the garage currently houses the utility room, oil boiler and water tank. There is an exclusive option to purchase a beach hut on Abersoch main beach by separate negotiation.
Practical points for buyers: the property is heated by an oil-fired boiler, council tax is Band G and therefore relatively costly, and the immediate area records higher levels of deprivation. The title is believed to be freehold but purchasers should verify with their solicitor. Overall, this is a renovated coastal bungalow that combines seaside proximity with roomy accommodation and strong storage/parking provision.
4 bedroom detached bungalow for sale in Tan Y Gaer, Abersoch, Pwllheli, LL53 — £625,000 • 4 bed • 2 bath • 1219 ft²
3 bedroom bungalow for sale in Harbour Estate, Abersoch, Gwynedd, LL53 — £550,000 • 3 bed • 2 bath • 955 ft²
4 bedroom detached house for sale in Tan Y Gaer, Abersoch, Gwynedd, LL53 — £625,000 • 4 bed • 3 bath • 2037 ft²
4 bedroom detached house for sale in Cae Pin Estate, Abersoch, Gwynedd, LL53 — £495,000 • 4 bed • 3 bath • 1392 ft²
4 bedroom detached bungalow for sale in Harbour Estate, Abersoch, Pwllheli, LL53 — £525,000 • 4 bed • 2 bath • 990 ft²
4 bedroom bungalow for sale in Tan Y Gaer, Abersoch, Gwynedd, LL53 — £425,000 • 4 bed • 2 bath • 1716 ft²














































































































