**Standout Features:**
- Leasehold term: 125 years from 2013 (111 years remaining)
- 24/7 estate management with emergency call system
- On-site communal lounge and guest suite
- Private access to a communal garden and patio
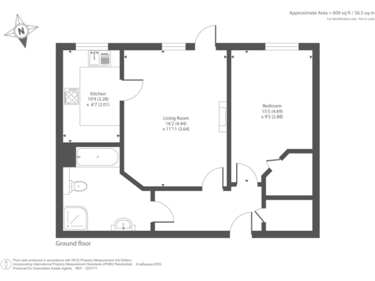
- Spacious 1-bedroom layout with modern kitchen
- Convenient location near Basingstoke High Street
**Concerns:**
- High service charge (£9,202.03/year) and ground rent (£510/year)
- Crime rate in the area is very high
Nestled in an engaging retirement community, this well-maintained ground floor flat boasts a comfortable 609 square feet of thoughtfully designed living space—perfect for those seeking independence with a touch of luxury. The fully-fitted kitchen flows seamlessly into the generous living area, while the private patio opens up to manicured communal gardens, ideal for enjoying sunny days. With a dedicated guest suite just steps away, welcoming family or friends has never been easier.
Safety and support are prioritized here, featuring a 24-hour emergency call system and the opportunity for additional domestic support tailored to individual needs. However, consider the annual service charge of over £9,200, which encompasses key amenities and upkeep; thorough financial evaluation is advised.
Located a mere 0.3 miles from vibrant Basingstoke High Street, access to shops, transport links, and a variety of eateries is right at your fingertips. Despite its high crime rate, the affluent surroundings offer potential for comfortable living. Don't miss out on this rare opportunity to secure a home in a secure and dynamic retirement space—ideal for peace of mind and community engagement.
1 bedroom apartment for sale in Lady Susan Court, New Road, Basingstoke, Hampshire, RG21 — £160,000 • 1 bed • 1 bath • 552 ft²
1 bedroom apartment for sale in Lady Susan Court, New Road, Basingstoke, RG21 — £220,000 • 1 bed • 1 bath • 610 ft²
1 bedroom apartment for sale in Lady Susan Court, New Road, Basingstoke, RG21 — £155,000 • 1 bed • 1 bath • 675 ft²
1 bedroom apartment for sale in Lady Susan Court, New Road, Basingstoke A One Bedroom First Floor Retirement Apartment, RG21 — £160,000 • 1 bed • 1 bath • 603 ft²
1 bedroom apartment for sale in Lady Susan Court, New Road, Basingstoke Hampshire, RG21 — £230,000 • 1 bed • 1 bath • 614 ft²
1 bedroom retirement property for sale in Lady Susan Court, New Road, Basingstoke, RG21 — £220,000 • 1 bed • 1 bath • 535 ft²






































































