Luxuriously reworked Victorian duplex near park and transport.
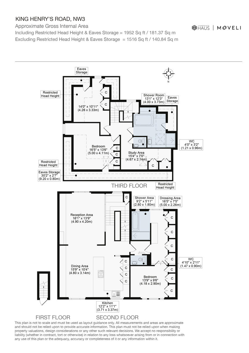
Approx 1,942 sq ft of duplex living space
Set across the second and third floors of a grand Victorian villa, this newly refurbished three-bedroom maisonette offers almost 1,942 sq ft of considered living space. The conversion combines original proportions and period brickwork with high-spec modern finishes: bespoke cabinetry, Crittall-style glass partitions, oak floors, and an open-plan reception and kitchen arranged for entertaining and everyday life. Practical comforts include automist fire suppression, air conditioning to the upper bedrooms, extensive hidden storage and high-quality integrated appliances.
The principal suite is a notable feature, arranged across distinct zones with a generous dressing area, spa-like en-suite and full-height fitted wardrobes. Two further large double bedrooms, a family bathroom, study space and a separate utility area sit on the upper level, giving flexible accommodation for family life, guests or home working. Externally the property sits back from the road with a garden and benefits from an unusually large plot for the area.
Location is a strong selling point: a short walk to Primrose Hill village and park, with Swiss Cottage and Chalk Farm stations within easy reach and excellent local shops, cafés and restaurants nearby. The home is offered as a share of freehold. Note the property sits across two floors with an industrial floating staircase, so it may not suit those requiring step-free access. Council tax is banded at a higher level, reflecting the area and property size.
3 bedroom flat for sale in Fellows Road, Hampstead, NW3 — £1,100,000 • 3 bed • 2 bath • 1372 ft²
2 bedroom flat for sale in Elsworthy Terrace, Primrose Hill, London, NW3 — £1,295,000 • 2 bed • 1 bath • 983 ft²
2 bedroom flat for sale in King Henrys Road, London, NW3 — £975,000 • 2 bed • 2 bath • 781 ft²
3 bedroom apartment for sale in Primrose Hill Road, London, NW3 — £2,200,000 • 3 bed • 2 bath • 2026 ft²
3 bedroom flat for sale in King Henrys Road,
Primrose Hill, NW3 — £1,250,000 • 3 bed • 2 bath • 905 ft²
3 bedroom flat for sale in King Henrys Road, Primrose Hill, London, NW3 — £1,950,000 • 3 bed • 3 bath • 1316 ft²






























































































































































































