Spacious bay-windowed lounge with good natural light
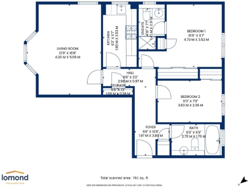
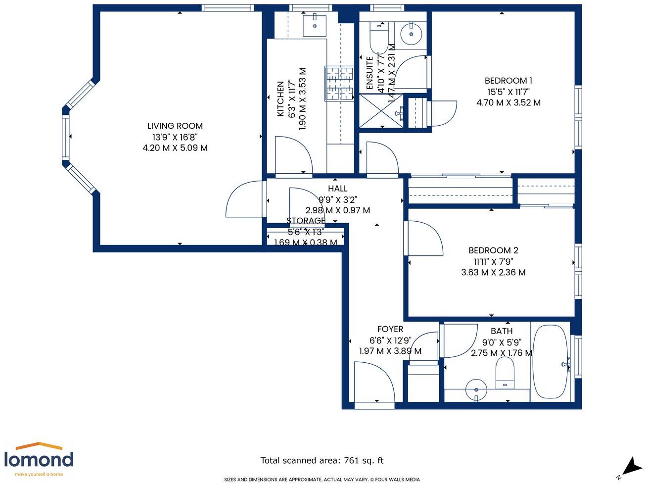
Light-filled first-floor flat offering comfortable, low-maintenance living in central Prestwick. The bay-windowed lounge and two double bedrooms — including a master with en suite — give a roomy, practical layout across circa 761 sq ft. The finish is modern and presented in walk-in condition, ready for immediate occupation.
Practical conveniences include a private parking space and a secure garage, plus excellent mobile and fast broadband speeds — useful for staying connected or working from home. The location is a strong selling point: a short walk to the award-winning town centre, Prestwick train station and the beach, with Prestwick Airport nearby for easy travel.
Be aware of two material considerations: the property sits within an area classed as very deprived, which may affect future resale comparisons, and council tax is above average. The flat is freehold and in a well-maintained building, but buyers seeking larger gardens or ground-floor access may prefer a house.
This home will suit downsizers or professionals seeking a well-located, low-upkeep base by the coast — or investors wanting a ready-to-rent, well-connected flat with garage parking.







































































































