Versatile family living near coastal paths with practical parking and storage.
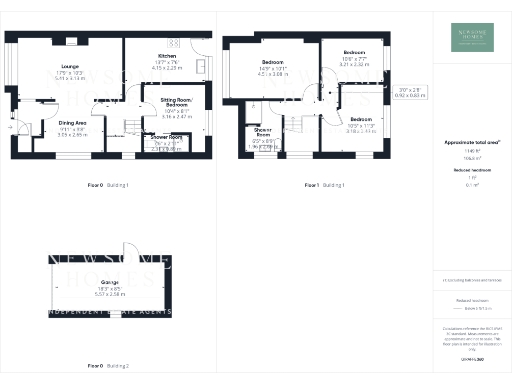
4 bedrooms with flexible ground-floor bedroom and en‑suite
Open-plan lounge and dining ideal for family living
Large overall floor area (approx. 2,183 sqft)
Detached garage with electric door and block‑paved driveway
uPVC double glazing and mains gas central heating
Views over the Dee Estuary and close to the Wales Coastal Path
Very deprived local area; may affect resale or rental values
Council Tax Band D (moderate)
This spacious semi‑detached home in Bagillt offers flexible family living across generous floor space, with sweeping views over the Dee Estuary. The ground floor includes an adaptable bedroom with en‑suite — ideal for guests, multigenerational use, or a dedicated home office — plus an open‑plan lounge and dining area that flows to the kitchen. Three good bedrooms and a contemporary shower room lie on the first floor, keeping family life practical and comfortable.
Outside, the property benefits from front and rear gardens, a block‑paved driveway and a detached garage with an electric door providing secure parking and storage. Practical fixtures include uPVC double glazing and mains gas central heating, and the home sits within walking distance of the Wales Coastal Path and local amenities in Bagillt, with fast broadband and straightforward road links to the A55.
Buyers should note the wider area scores as very deprived and local crime is average; these factors may affect resale or rental prospects. Council Tax is band D (moderate). Overall, the house is a large, well‑configured family property with estuary views and genuine potential for long‑term living or sensible updating to suit personal taste.
4 bedroom detached house for sale in Roseneath View, Bagillt, Flintshire, CH6 — £260,000 • 4 bed • 3 bath • 1501 ft²
3 bedroom detached house for sale in Merllyn Lane, Bagillt, Flintshire, CH6 — £350,000 • 3 bed • 1 bath • 1637 ft²
3 bedroom detached house for sale in Sandy Lane, Bagillt, Flintshire, CH6 — £300,000 • 3 bed • 1 bath • 1293 ft²
3 bedroom detached house for sale in Bagillt Road, Bagillt, Flintshire, CH6 — £250,000 • 3 bed • 2 bath • 1736 ft²
3 bedroom semi-detached house for sale in Pen Y Glyn, Bagillt, Flintshire, CH6 — £160,000 • 3 bed • 1 bath • 983 ft²
4 bedroom detached house for sale in High Street, Bagillt, CH6 — £330,000 • 4 bed • 3 bath • 1378 ft²


























































































































