Bright two-bedroom with garage and south-facing garden ideal for growing families.
Open-plan living with modern kitchen and integrated dishwasher space
Well-presented two-bedroom terraced house set in a quiet village street, offering bright open-plan living and a south-facing rear garden. Recent upgrades include a Baxi gas boiler (installed Feb 2024) and UPVC double glazing, making the property comfortable and energy-efficient for everyday family life.
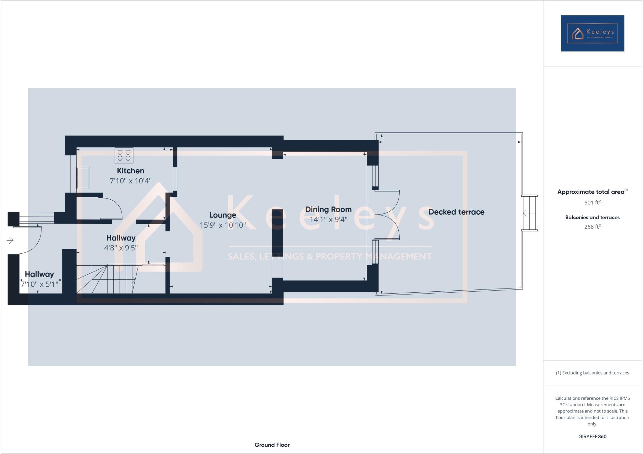
The ground floor is open and adaptable, with a modern kitchen equipped with integrated dishwasher space and dining doors that lead onto decking beneath a pergola with an established grapevine. Upstairs provides two good-size bedrooms, a family bathroom and useful loft access (half-boarded), all within approximately 78 sqm (840 sq ft) of accommodation.
Outside benefits include a fully enclosed small rear garden, access to additional communal lawn, and a single garage en-bloc with power and light reached from the High Street. The plot is modest in size, so outdoor space is compact but sunny and low-maintenance.
Practical points to note: parking is via the separate garage rather than on-plot; the house is a terrace with shared boundaries; and the layout is best suited to buyers wanting efficient, ready-to-live-in accommodation rather than a large garden or extensive extension. The village setting offers fast broadband, low crime and nearby schools, including a strong independent option.
2 bedroom terraced house for sale in Blackthorn Court, Soham, Ely, CB7 — £215,000 • 2 bed • 1 bath • 603 ft²
2 bedroom terraced house for sale in Morton Close, Ely, CB7 — £260,000 • 2 bed • 1 bath • 592 ft²
2 bedroom terraced house for sale in Main Street, Witchford, CB6 — £250,000 • 2 bed • 1 bath • 570 ft²
3 bedroom end of terrace house for sale in Stirling Way, Sutton, Ely, Cambs., CB6 2QY, CB6 — £299,999 • 3 bed • 2 bath • 969 ft²
2 bedroom end of terrace house for sale in Newgate Street, Doddington, March., PE15 0SR, PE15 — £210,000 • 2 bed • 1 bath • 646 ft²
2 bedroom house for sale in Quinton Road, Witchford, Ely, Cambridgeshire, CB6 — £269,950 • 2 bed • 2 bath • 850 ft²


















































































































