Chain‑free three bed maisonette with large garden and residents' parking close to Shepperton station..
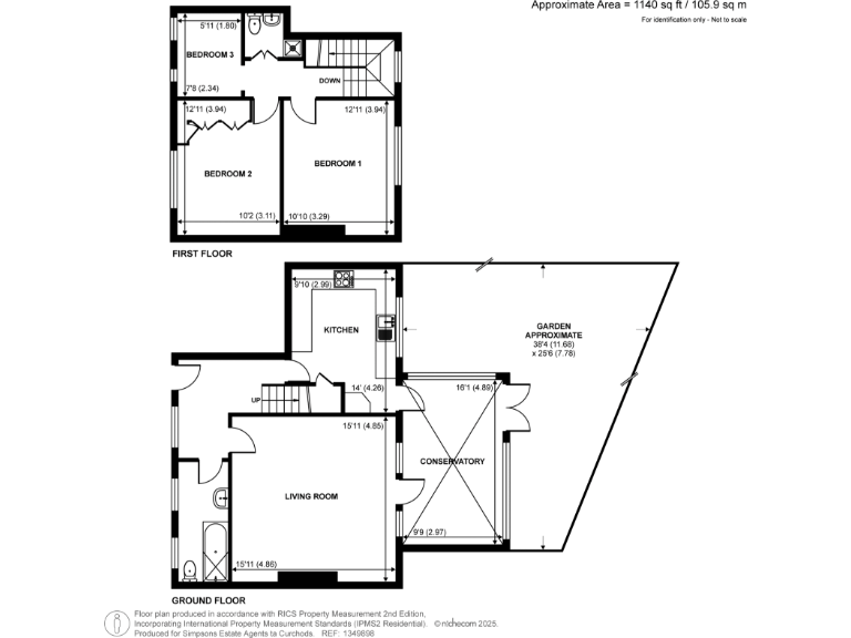
- Approximately 1,140 sq ft split‑level accommodation
- Large private rear garden, generous for entertaining or children
- Residents’ off‑street parking for convenience
- Chain free sale for quicker completion
- Leasehold with ~104 years remaining; check mortgageability
- Low service charge £125 per annum
- Solid brick construction; likely needs energy‑efficiency upgrades
- Two bathrooms; one reception room and conservatory access
This spacious three‑bedroom split‑level maisonette occupies the lower two floors of a Victorian end‑terrace and extends to approximately 1,140 sq ft. The layout suits family life: a large living room with period detailing, a kitchen leading through a conservatory to a generous private rear garden, and three well‑proportioned bedrooms upstairs. Two bathrooms add convenience for busy households.
Practical benefits include residents’ off‑street parking, fast broadband and excellent mobile signal, and a low annual service charge of £125. The property is offered chain free, so purchase and move‑in can be straightforward for first‑time buyers, families or buy‑to‑let investors.
Notable considerations: the building is solid brick and likely lacks cavity insulation, so energy‑efficiency improvements may be required. The flat is leasehold with approximately 104 years remaining and a modest service charge—buyers should check mortgageability and long‑term costs. As a period conversion, some maintenance and updating may be needed to modernise heating, windows or finishes to personal taste.
Overall the maisonette delivers roomy accommodation and a large garden in a convenient Shepperton location close to the high street and mainline station. It will particularly appeal to buyers seeking character, outdoor space and the potential to add value through measured refurbishment.
3 bedroom maisonette for sale in Annett Close, Shepperton, TW17 — £299,950 • 3 bed • 1 bath • 860 ft²
2 bedroom maisonette for sale in Watersplash Road, Shepperton, Surrey, TW17 — £299,950 • 2 bed • 1 bath • 574 ft²
3 bedroom terraced house for sale in Cassocks Square, Shepperton, TW17 — £495,000 • 3 bed • 2 bath • 873 ft²
2 bedroom apartment for sale in Shepperton Court Drive, Shepperton, TW17 — £280,000 • 2 bed • 1 bath • 635 ft²
3 bedroom flat for sale in Hetherington Road, Charlton Village, Shepperton, TW17 — £320,000 • 3 bed • 1 bath • 890 ft²
1 bedroom flat for sale in Village Gate, 47-49 Laleham Road, Shepperton, TW17 — £230,000 • 1 bed • 1 bath • 481 ft²






















































