G42 9SG - 2 bedroom flat for sale in Flat 1/2, 86 Dundrennan Road, Ba…

View on Property Piper

2 bedroom flat for sale in Flat 1/2, 86 Dundrennan Road, Battlefield, G42

Summary - 1/2, 86, DUNDRENNAN ROAD, GLASGOW G42 9SG

2 bed 1 bath Flat

**Standout Features:**
- Ideal location in the heart of Battlefield
- Bright and spacious 2-bedroom flat (827 sq ft)
- Charming Edwardian architecture with period features
- Security-controlled entrance and gas central heating
- Access to well-maintained residents’ gardens
- Convenient for local amenities, transport, and schools
- Fast broadband and excellent mobile signal

Elevate your living experience in this generously proportioned and character-filled **2-bedroom** flat nestled in the vibrant Battlefield neighborhood. Boasting bright interiors, highlighted by an impressive bay windowed formal lounge with a charming focal point fireplace, this property offers both comfort and style. The bespoke galley kitchen is perfect for culinary enthusiasts, featuring ample storage and contemporary appliances, while two spacious bedrooms provide a welcoming haven for relaxation.

With a strong emphasis on traditional features and modern amenities, including gas central heating and double glazing, this home is well-maintained and ready for you to make it your own. The communal gardens invite leisurely afternoons outdoors, and the prime location ensures you are just steps away from bars, restaurants, shops, and excellent transport links, including Mount Florida railway station.

However, the area currently registers as very deprived, which potential buyers might consider a downside. Closing date for offers is set for **Wednesday, 13th August at 12 noon**. Don’t miss out on this opportunity to invest in a property that combines historical charm with modern living, all set in a lively and convenient locale. Schedule your viewing now to truly appreciate what this exceptional flat has to offer!

Property Details

Image Descriptions

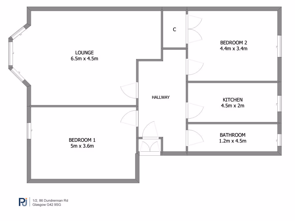
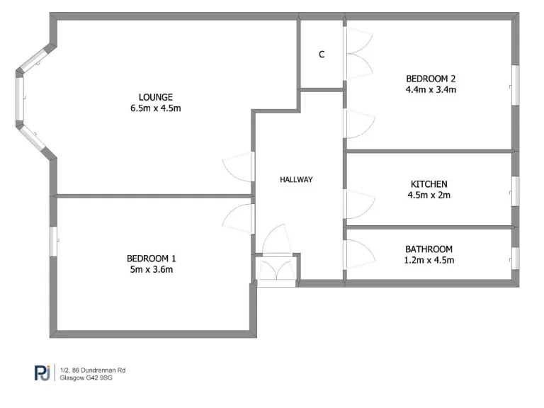
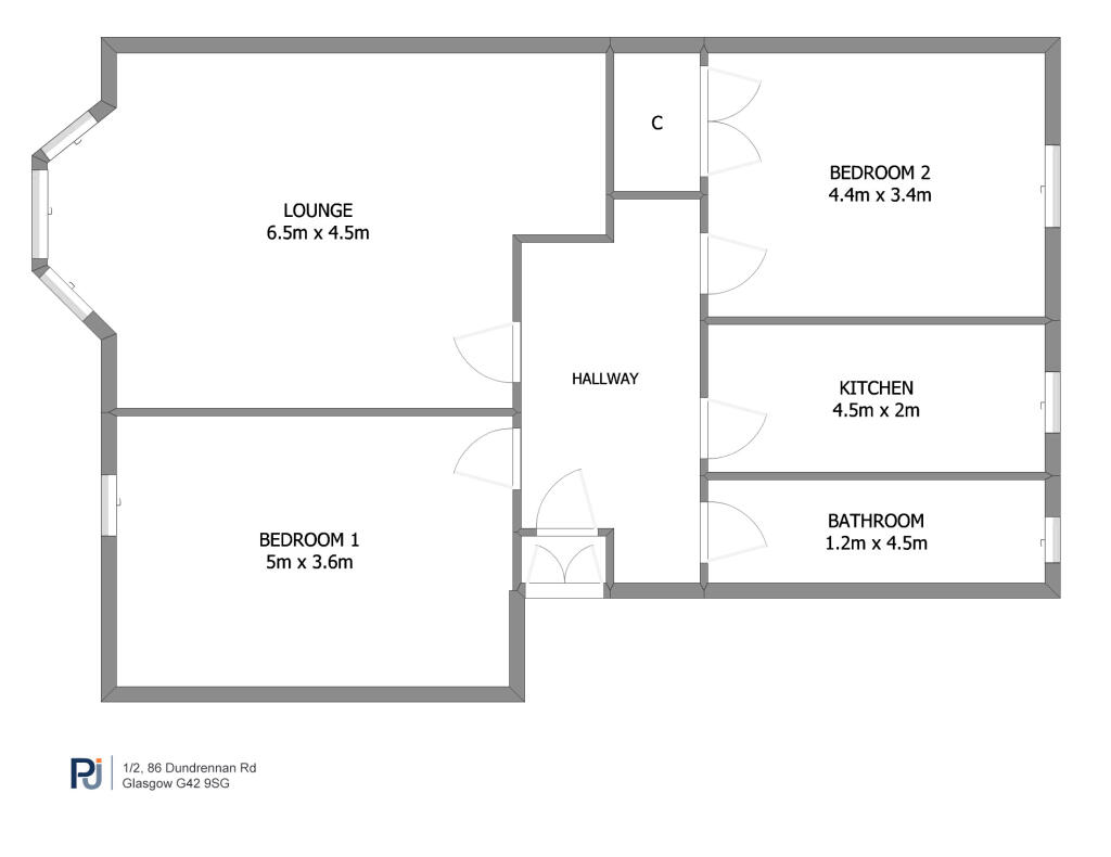
Floorplan Description

Rooms

Textual Property Features

Detected Visual Features

Nearest Bars And Restaurants

,,,,}

Nearest General Shops

,,}

Nearest Grocery shops

,,}

Nearest Supermarkets

,,}

Nearest Religious buildings

,,}

Nearest Medical buildings

,,,}

Nearest Airports

,}

Nearest Leisure Facilities

,,,,}

Nearest Tourist attractions

,,}

Nearest Train stations

,,,,}

Nearest Bus stations and stops

,,,,}

Nearest Hotels

,,}

Tags

Local Market Stats

AirBnB Data

Similar Properties

Meta

High Res Images

Compatible Images

Low res Images

Thumbnails

Raw Images

High Res Floorplan Images

Compatible Floorplan Images

Low res Floorplan Images

FloorplanImages Thumbnail

Raw Floorplan Images