Small freehold two-bed, needs renovation — auction guide £70k–£90k, suitable for investor or DIY buyer..
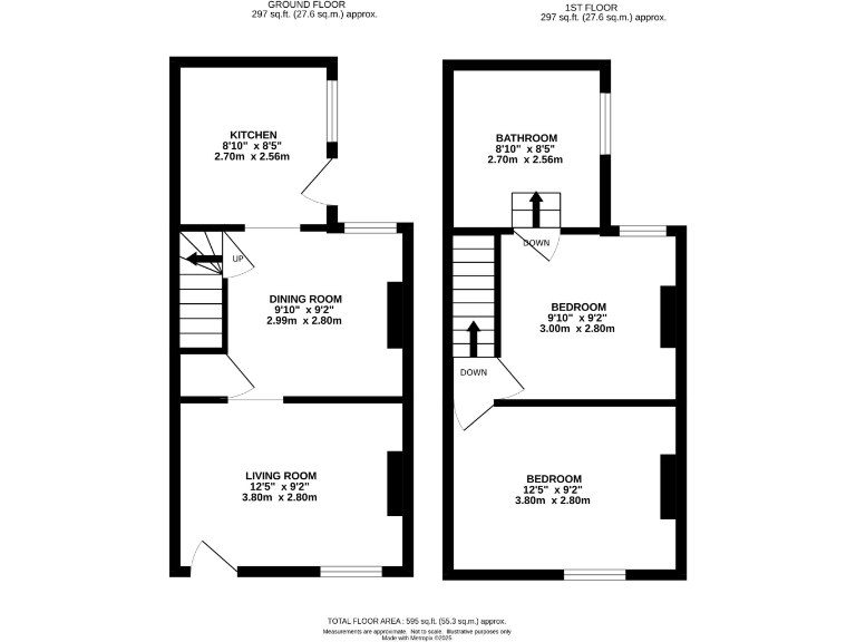
Freehold two-bed Victorian end-terrace, ~600 sq ft
Previously let at £575 pcm; sold vacant
Requires renovation throughout, kitchen mould and wall damage
Solid brick walls likely without insulation
Double glazing (installed before 2002) and gas central heating
Very high local crime and very deprived area
Very small rear yard and overall small plot
Auction sale; £1,200 administration fee on exchange
A compact two-bedroom end-of-terrace Victorian house offered freehold and vacant. Set close to Lowestoft town centre, the property extends to around 600 sq ft and was previously let at £575 pcm, so it suits both an investor seeking a rental let or a buyer willing to renovate for owner-occupation.
The house has practical basics in place: double glazing (installed pre-2002), mains gas boiler with radiators and an EPC rating of D. Broadband speeds are fast and mobile signal is excellent, which helps with rental appeal and modern living. The location provides easy access to local shops, pubs and other town centre amenities.
This home requires visible renovation throughout — the kitchen is dated with suspected mould behind cabinetry, some wall damage and missing light fittings; the property also appears to have solid brick walls with no added insulation. The area is very deprived and records very high crime, which will affect resale and rental desirability and should be an important consideration for buyers.
Sale is by livestream auction (guide £70,000–£90,000). There is an administration fee of £1,200 (inc. VAT) payable on exchange and other disbursements listed in the legal pack. Viewings are arranged on set dates before the auction; bidders must register to obtain legal documents and bidding instructions.
2 bedroom terraced house for sale in 30 Tonning Street, Lowestoft, Suffolk NR32 2AN, NR32 — £70,000 • 2 bed • 1 bath • 602 ft²
2 bedroom terraced house for sale in Beresford Road, Lowestoft, NR32 — £110,000 • 2 bed • 1 bath • 2401 ft²
2 bedroom semi-detached house for sale in 35 Portsch Close, Carlton Colville, Lowestoft, Norfolk NR33 8TY, NR33 — £100,000 • 2 bed • 1 bath • 528 ft²
4 bedroom cluster house for sale in 16 Salisbury Road, Lowestoft, Suffolk NR33 0HE, NR33 — £160,000 • 4 bed • 1 bath
4 bedroom terraced house for sale in 133 Southtown Road, Great Yarmouth, Norfolk NR31 0LA, NR31 — £90,000 • 4 bed • 1 bath • 1209 ft²
2 bedroom semi-detached house for sale in 41 Durban Road, Lowestoft, Suffolk NR33 0UH, NR33 — £110,000 • 2 bed • 1 bath • 696 ft²


























































