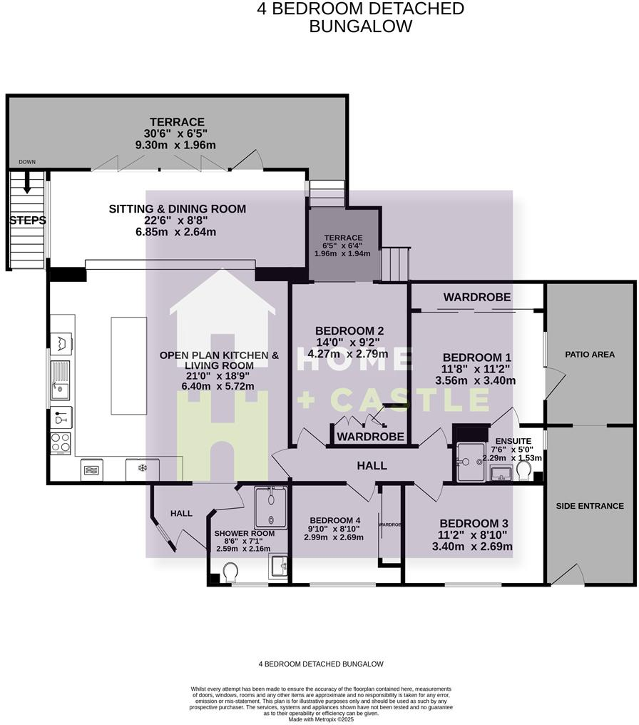
High-spec 4-bed bungalow with south terrace, gardens all around and parking — short walk to the beach..
Individually designed detached bungalow with four bedrooms
A rare individually designed detached bungalow offering four bedrooms and a contemporary open-plan living space, set in mature gardens with a large, secluded south-facing terrace. The home is presented to a high specification with double glazing, gas central heating and a modern fitted kitchen with island, making it comfortable and move-in ready for someone seeking single-storey living close to the seafront.
The plot is a standout feature: gardens to all sides provide multiple private seating areas, a sheltered terrace for sun all day and off-street parking for two to three cars. The bungalow’s layout is practical for downsizers who still need space for guests or family, and for owners who value an easy walk to local amenities and the beach (approximately five minutes on foot).
Buyers should note a few material points: the property footprint is relatively modest at about 1,134 sq ft, glazing was installed before 2002 (double glazed but not new), and some under-property storage has restricted height. Energy performance is rated D and the council tax is Band E. The local area classifications indicate ageing urban communities and slightly above-average crime levels, which may concern some buyers.
Overall this is a well-presented, versatile bungalow that suits someone prioritising single-floor living, outdoor privacy and proximity to the coast. It provides immediate comfort with potential to personalise or update elements over time.
3 bedroom detached bungalow for sale in Laburnum Gardens, Bexhill-On-Sea, TN40 — £400,000 • 3 bed • 2 bath • 1074 ft²
4 bedroom detached bungalow for sale in Second Avenue, Bexhill-On-Sea, TN40 — £390,000 • 4 bed • 2 bath • 1579 ft²
4 bedroom detached bungalow for sale in St Johns Road, Bexhill-on-Sea, TN40 — £495,000 • 4 bed • 2 bath • 1294 ft²
3 bedroom detached bungalow for sale in The Finches, Bexhill-on-Sea, TN40 — £495,000 • 3 bed • 1 bath • 1086 ft²
3 bedroom detached bungalow for sale in Venture Close, Bexhill-on-Sea, TN40 — £450,000 • 3 bed • 2 bath • 990 ft²
3 bedroom detached bungalow for sale in College Road, Bexhill-On-Sea, TN40 — £375,000 • 3 bed • 1 bath • 1225 ft²






























































































































































































