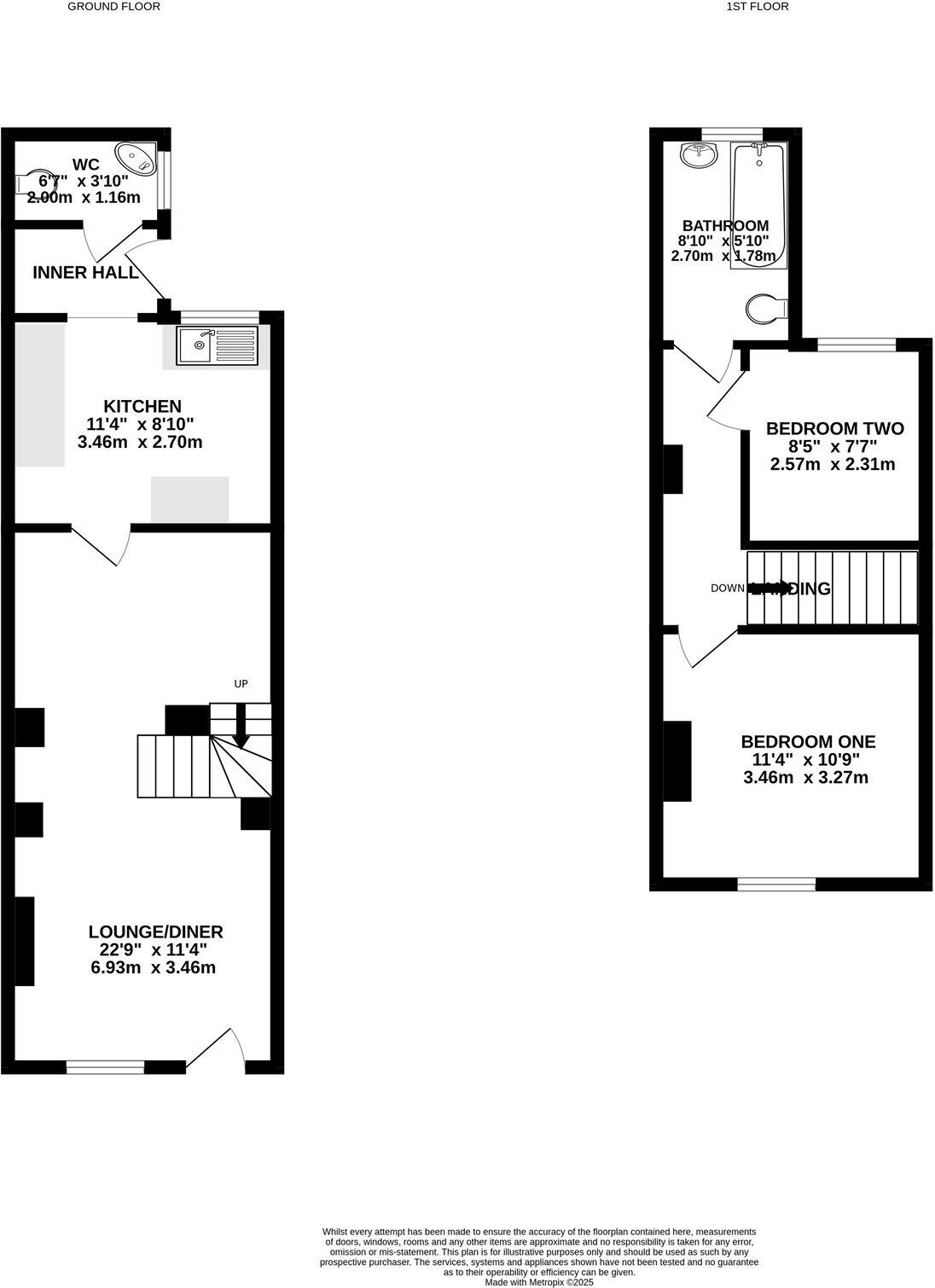
**Standout Features:**
- Two-bedroom mid-terraced house with Victorian character
- Ground floor including lounge/diner, kitchen, and WC
- First floor with two bedrooms and bathroom
- Garden space and on-street parking
- Located near King's Lynn Town Centre
- GAS central heating and double-glazing
- Convenient amenities and schools within walking distance
**Potential Concerns:**
- High crime rate in the local area
- Property may require updating and modernization
- Limited outdoor space and small plot size
Discover a cozy, two-bedroom mid-terrace house on Lansdowne Street, perfect for first-time buyers or small families looking for comfortable accommodations. This charming property features a well-proportioned lounge/diner and a functional kitchen, making it ideal for both entertaining and everyday living. The ground floor also houses a convenient WC for added practicality.
Ascend to the first floor where two bedrooms and a well-sized bathroom await, ensuring ample space for rest and relaxation. While the property's Victorian design brings a touch of character, it does present a prime opportunity for customization and modernization to appeal to your personal style. The small garden offers low-maintenance outdoor space, while on-street parking adds convenience.
Nestled in a transitional neighborhood, with a range of amenities and reputable schools nearby, this home is strategically located just a short stroll from King's Lynn Town Centre. Although the area’s crime rate is higher than average and initial updates may be needed, the fast broadband and gas central heating highlight its potential for comfort and connectivity. Don't miss the chance to own this property—experience the future possibilities today!
2 bedroom terraced house for sale in Sir Lewis Street, King's Lynn, PE30 — £125,000 • 2 bed • 1 bath • 722 ft²
2 bedroom terraced house for sale in George Street, KING'S LYNN, PE30 — £125,000 • 2 bed • 1 bath • 657 ft²
2 bedroom terraced house for sale in South Street, King's Lynn, PE30 — £195,995 • 2 bed • 1 bath • 649 ft²
2 bedroom end of terrace house for sale in Sir Lewis Street, King's Lynn, PE30 — £165,000 • 2 bed • 1 bath • 743 ft²
2 bedroom town house for sale in King Street, King's Lynn, PE30 — £170,000 • 2 bed • 1 bath • 485 ft²
2 bedroom terraced house for sale in North End Yard, Kings Lynn, PE30 — £130,000 • 2 bed • 1 bath






















































