Compact period home with private courtyard and quality kitchen appliances.
No onward chain — ready for a quicker sale
Character features: exposed brick, original fireplaces, wooden beams
Shaker kitchen with Neff oven and Miele hob
West-facing courtyard with mature olive trees and powered shed
Oil-fired heating; boiler and radiators (oil tank concealed outside)
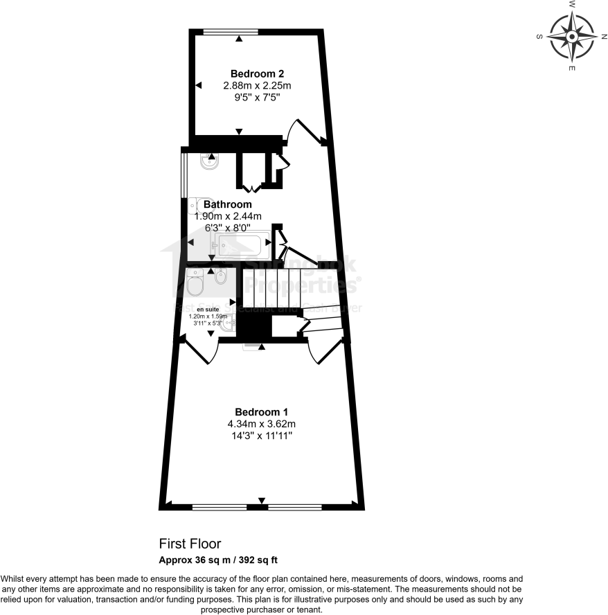
Small overall size — about 392 sq ft; compact rooms
Solid brick walls assumed uninsulated — potential upgrade needed
Medium flood risk — check insurance and local flood history
A charming two-bedroom mid-terrace cottage in the centre of Debenham, offered with no onward chain. The home mixes period character — exposed brick, original fireplaces and wooden beams — with modern conveniences such as a shaker-style kitchen fitted with Neff and Miele appliances. The west-facing courtyard is attractively landscaped with mature olive trees and a powered brick shed.
The ground floor feels intimate: a sitting room with a feature fireplace and gas-fired wood burner flows to a character dining room with exposed brick. Upstairs the main bedroom has built-in wardrobes and an ensuite cloakroom; a second bedroom and a fully tiled family bathroom complete the accommodation. Double glazing is present, but much of the house retains its historic fabric.
Practical points to note: heating is oil-fired with a boiler and radiators, and the original solid brick walls are assumed to be without insulation. The property is small (approx. 392 sq ft) and sits in an area with a medium flood risk — buyers should check insurance and local flood records. For someone seeking a compact village home or a starter purchase, this cottage offers character, convenience and scope for sympathetic improvement.
Viewing is advised to appreciate the setting, room proportions and courtyard. The location provides easy access to village amenities and good local schools, making the house suitable for first-time buyers or those wanting a low-maintenance village base.
2 bedroom town house for sale in Debenham, IP14 — £250,000 • 2 bed • 1 bath • 786 ft²
2 bedroom cottage for sale in Cross Green, Debenham, Stowmarket, IP14 — £200,000 • 2 bed • 1 bath • 759 ft²
2 bedroom semi-detached house for sale in Debenham, IP14 — £250,000 • 2 bed • 1 bath • 643 ft²
3 bedroom mews property for sale in Debenham, IP14 — £295,000 • 3 bed • 1 bath • 946 ft²
4 bedroom town house for sale in Debenham, IP14 — £650,000 • 4 bed • 3 bath • 2200 ft²
3 bedroom semi-detached house for sale in Priory Lane, Debenham, IP14 — £415,000 • 3 bed • 2 bath • 1217 ft²


































































