Bright single-level living with driveway parking and a full-width conservatory.
Chain free two-bedroom semi-detached bungalow
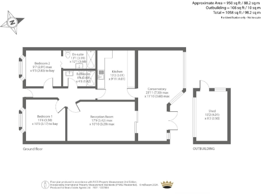
A well-presented two-bedroom semi-detached bungalow offered chain-free and ready to move into. Neutral decor and a spacious lounge open through large sliding doors into a full-width conservatory, creating bright, flexible living space ideal for downsizers or those seeking single-level accommodation.
The layout includes two front-aspect bedrooms (bedroom two with an ensuite), a separate family bathroom and a fitted kitchen with appliance spaces. Practical benefits include driveway parking, an enclosed rear lawn with a small paved patio, and a useful brick-built storage shed with double-glazed windows and door.
Built in the early 20th century, the home benefits from double glazing (install date unknown) and gas central heating via boiler and radiators; its Energy Rating is D. It is freehold with council tax band C. The property’s straightforward condition and neutral presentation mean cosmetic updates are minimal, though buyers should expect typical maintenance for a property of this age.
Location is convenient for local shops in Bitterne, Southampton city centre and green spaces such as Riverside Park and Manor Farm Country Park. Good road links (M3/M27) and Southampton Parkway rail services give easy regional and London connections. Prospective buyers with school-age children should note local school performance varies across nearby options.
2 bedroom bungalow for sale in Upper Deacon Road, Southampton, Hampshire, SO19 — £330,000 • 2 bed • 1 bath • 633 ft²
2 bedroom semi-detached bungalow for sale in Braeside Road, Bitterne, SO19 — £260,000 • 2 bed • 1 bath • 562 ft²
2 bedroom bungalow for sale in Onibury Road, Southampton, Hampshire, SO18 — £270,000 • 2 bed • 1 bath • 1053 ft²
2 bedroom semi-detached bungalow for sale in Bitterne Road West, Southampton, Hampshire, SO18 — £280,000 • 2 bed • 1 bath • 661 ft²
2 bedroom semi-detached bungalow for sale in Walsingham Gardens, Southampton, SO18 — £350,000 • 2 bed • 1 bath • 625 ft²
3 bedroom bungalow for sale in Southampton, SO16 — £285,000 • 3 bed • 1 bath • 824 ft²






























































