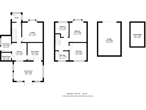
**Standout Features:**
- Beautifully presented three-bedroom semi-detached house
- Generous front lounge with bay window and traditional charm
- Cozy second sitting room with a log-burning stove
- Well-appointed kitchen with modern appliances
- Stylish rear garden room ideal for relaxed living
- Versatile brick-built garden room, perfect for a home office or studio
- Detached double garage and spacious block-paved driveway
- Private, well-maintained rear garden
**Potential Concerns:**
- Proximity to less-regarded local schools (one rated Inadequate)
Nestled in the idyllic village of Hesketh Bank, this charming three-bedroom semi-detached home presents an exceptional opportunity for families or professionals seeking a blend of comfort and style. With an elegant front lounge enhanced by a large bay window, a cozy sitting room featuring a log-burning stove, and a modern kitchen that flows into a versatile garden room, this property offers ample space for both relaxation and entertainment. The beautifully maintained rear garden, decked with a delightful brick-built garden room, invites you to imagine cozy family gatherings or creative workspaces.
Enjoy the benefits of a generous block-paved driveway, detached double garage, and low local crime rates in a peaceful and affluent setting. Although one nearby school has an inadequate rating, two others boast good ratings, ensuring quality education options for your family. Experience the charm of village living while still being within reach of essential amenities—this well-rounded property is ready to welcome you home. Don’t miss out on this rare find! Viewings available upon request.
3 bedroom semi-detached house for sale in Wyke Cop Road, Scarisbrick, Merseyside, PR8 — £280,000 • 3 bed • 2 bath • 996 ft²
3 bedroom semi-detached house for sale in Crosshall Brow, L40 — £280,000 • 3 bed • 2 bath • 1128 ft²
3 bedroom semi-detached house for sale in Ashtrees, Mawdesley, L40 — £275,000 • 3 bed • 1 bath • 942 ft²
3 bedroom house for sale in Chorley Road, Hilldale, L40 3SL, L40 — £515,000 • 3 bed • 2 bath • 1572 ft²
4 bedroom detached house for sale in 3 Oak Tree Close, New Street, Mawdesley, L40 2QP, L40 — £825,000 • 4 bed • 3 bath • 2195 ft²
4 bedroom detached house for sale in Roadtrain Avenue, Leyland, PR26 7BE, PR26 — £369,950 • 4 bed • 3 bath • 1395 ft²














































































