Two doubles, garden and ample parking close to schools and buses.
Extended detached chalet bungalow with attic bedroom potential
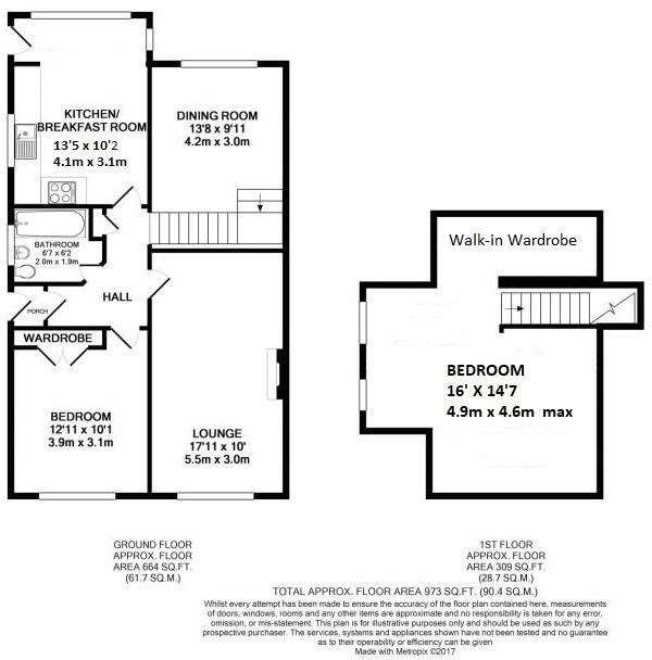
This extended detached chalet bungalow in BH12 offers roomy, flexible living across a single-storey footprint plus attic space. Two double bedrooms, two reception rooms and an open-plan kitchen/breakfast area give practical flow for family life or downsizers seeking easy, low-rise living. A westerly rear garden and generous driveway for several vehicles are useful extras in this suburban setting.
The property is gas‑heated with double glazing and a filled cavity wall, helping with running costs, but some mid‑century elements are dated and the attic bedroom has a low ceiling — best suited for occasional use or as a home office. There is one family bathroom, so buyers wanting en-suite accommodation should factor in remodelling.
Well placed for local schools (including several rated Good and one Outstanding) and local buses, the bungalow suits families and buyers wanting a tidy, well‑located home with scope to update. With almost 1,000 sq ft of accommodation and a decent plot, there is clear potential to modernise finishes and adapt rooms to suit contemporary living.
Buyers should note the double glazing appears to predate 2002 and the property shows typical mid‑20th century construction details; a cosmetic and systems review is recommended if you plan major alterations. Overall, the bungalow combines practical space, a good garden and parking with straightforward refurbishment potential.
2 bedroom bungalow for sale in Rossmore Road, Parkstone, Poole, Dorset, BH12 — £380,000 • 2 bed • 2 bath • 1633 ft²
4 bedroom bungalow for sale in Bascott Road, Bournemouth, Dorset, BH11 — £350,000 • 4 bed • 1 bath • 1054 ft²
2 bedroom bungalow for sale in Upper Road, Poole, Dorset, BH12 — £340,000 • 2 bed • 1 bath • 643 ft²
3 bedroom detached bungalow for sale in Brierley Road, Northbourne , BH10 — £475,000 • 3 bed • 2 bath • 1660 ft²
3 bedroom detached bungalow for sale in Corbiere Avenue, Poole, BH12 — £450,000 • 3 bed • 2 bath • 1500 ft²
2 bedroom bungalow for sale in Gussage Road, Poole, Dorset, BH12 — £325,000 • 2 bed • 1 bath • 667 ft²






























































































































