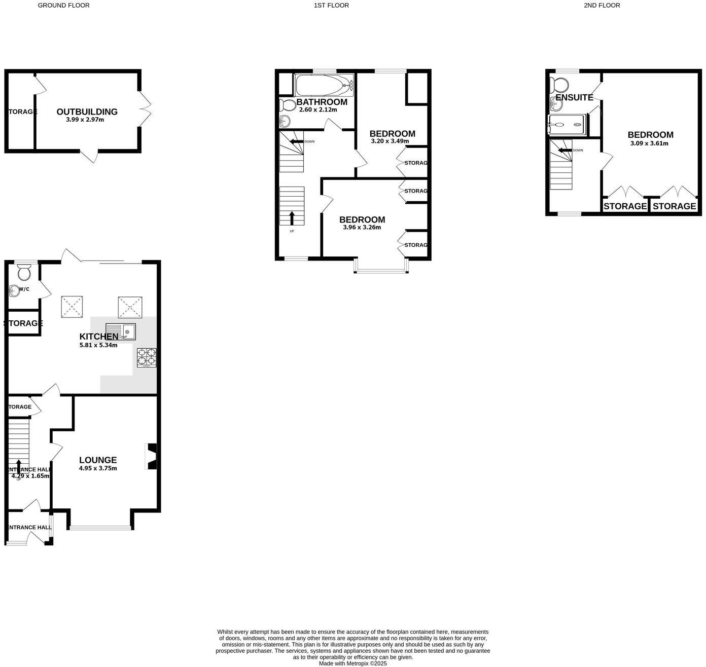
Extended three-bedroom family home with 100ft east-facing garden and versatile outbuilding..
- Extended open-plan kitchen/diner with bi-folding doors to garden
- Large east-facing rear garden, approx. 100ft
- Detached outbuilding/games room, suitable as office or gym
- Main bedroom with fitted storage and en-suite shower room
- Off-street parking to the front; newly rendered exterior
- Freehold, approx. 1,008 sq ft, average overall internal size
- Council tax moderate; area affluent with very low crime
- Suited to families; modest further modernisation possible
This extended three-bedroom semi-detached home on Premier Avenue blends period charm with recent modernisation, creating a comfortable base for family life. The ground floor offers a bright living room and a large open-plan kitchen/dining area with bi-folding doors that open onto an east-facing garden, ideal for morning sun and family gatherings.
Upstairs there are two good-sized bedrooms and a family bathroom, while the top-floor main bedroom provides a private retreat with fitted storage and an en-suite shower room. The property has been newly rendered externally and includes off-street parking and gas central heating, ready for immediate occupation.
The approximately 100ft rear garden and detached outbuilding/games room add valuable outdoor space and flexible accommodation for a home office, gym or studio. The overall internal size is average (about 1,008 sq ft) so buyers seeking very large rooms should note the footprint is typical for a suburban three-bedroom.
Located in a comfortable, affluent suburb with good local schools, low crime and fast broadband, the house suits growing families wanting a move-in-ready home with scope for modest further upgrades to personalise the space.
3 bedroom semi-detached house for sale in Lenmore Avenue, Grays, RM17 5NZ, RM17 — £450,000 • 3 bed • 2 bath • 1016 ft²
5 bedroom semi-detached house for sale in Heathview Road, Grays, RM16 2RS, RM16 — £525,000 • 5 bed • 2 bath • 1366 ft²
4 bedroom detached house for sale in Windsor Avenue, Grays, RM16 2TT, RM16 — £675,000 • 4 bed • 1 bath • 1798 ft²
4 bedroom detached house for sale in Victoria Avenue,Grays,RM16 2RN, RM16 — £800,000 • 4 bed • 2 bath • 1464 ft²
4 bedroom semi-detached house for sale in St. Georges Avenue, Grays, Essex, RM17 — £599,995 • 4 bed • 1 bath • 1244 ft²
3 bedroom detached house for sale in Rectory Road, Grays, RM17 — £450,000 • 3 bed • 1 bath • 1122 ft²










































































































































