SP7 8EJ - 3 bedroom cottage for sale in Salisbury Street, Town Centre…

View on Property Piper

3 bedroom cottage for sale in Salisbury Street, Town Centre Location With Parking, SP7

Summary - 50 SALISBURY STREET SHAFTESBURY SP7 8EJ

3 bed 1 bath Cottage

**Standout Features:**
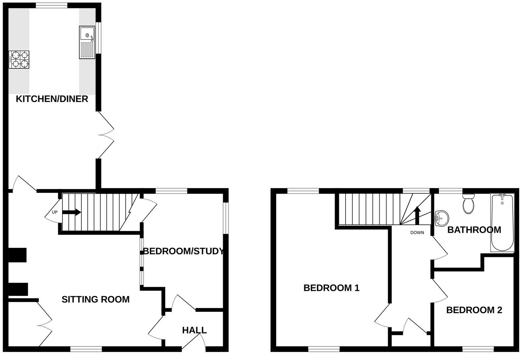
- Three good-sized bedrooms, including versatile space for a study.
- Enclosed rear garden, perfect for families and pets.
- Driveway parking available.
- Close proximity to Shaftesbury Town Centre with various amenities.
- Original Victorian features add character.
- Freehold tenure and chain-free sale.

**Concerns:**
- EPC Banding: D.
- Brick construction with no insulation assumed.
- The area has a higher crime rate.

Presenting a charming Victorian semi-detached cottage in the desirable town of Shaftesbury, this property is perfect for families seeking comfort with an eye for potential. Boasting three generously sized bedrooms and a spacious sitting room that invites natural light, this home is well-proportioned throughout. The cottage features a fitted kitchen with a delightful country-style finish, providing an inviting atmosphere for family meals.

The enclosed rear garden is a standout, offering a secure space for children to play or for garden enthusiasts to create their outdoor oasis. Conveniently located near the town center, residents can enjoy easy access to shops, restaurants, and local schools, including well-rated options. Although currently rated EPC D, the inviting character and layout of this home offer immense renovation potential for enhanced energy efficiency.

While driveway parking adds convenience, it's worth noting the area's elevated crime rate, making safety considerations important for potential buyers. This property is chain-free, presenting an ideal opportunity to move in without delay. Don’t miss your chance to own a piece of Shaftesbury's rich heritage. Schedule your viewing today!

Property Details

Image Descriptions

Floorplan Description

Rooms

Textual Property Features

Detected Visual Features

EPC Details

Nearby Schools

Nearest Bars And Restaurants

,,,,}

Nearest General Shops

,,}

Nearest Grocery shops

,,}

Nearest Supermarkets

,,}

Nearest Religious buildings

,,}

Nearest Medical buildings

,,,}

Nearest Leisure Facilities

,,,,}

Nearest Tourist attractions

,,}

Nearest Train stations

,,,,}

Nearest Bus stations and stops

,,,,}

Nearest Hotels

,,}

Tags

Local Market Stats

AirBnB Data

Similar Properties

Meta

High Res Images

Compatible Images

Low res Images

Thumbnails

Raw Images

High Res Floorplan Images

Compatible Floorplan Images

Low res Floorplan Images

FloorplanImages Thumbnail

Raw Floorplan Images