Contemporary new-build bungalow with large garden and underfloor heating.
Three-bedroom detached bungalow with en suite and family bathroom
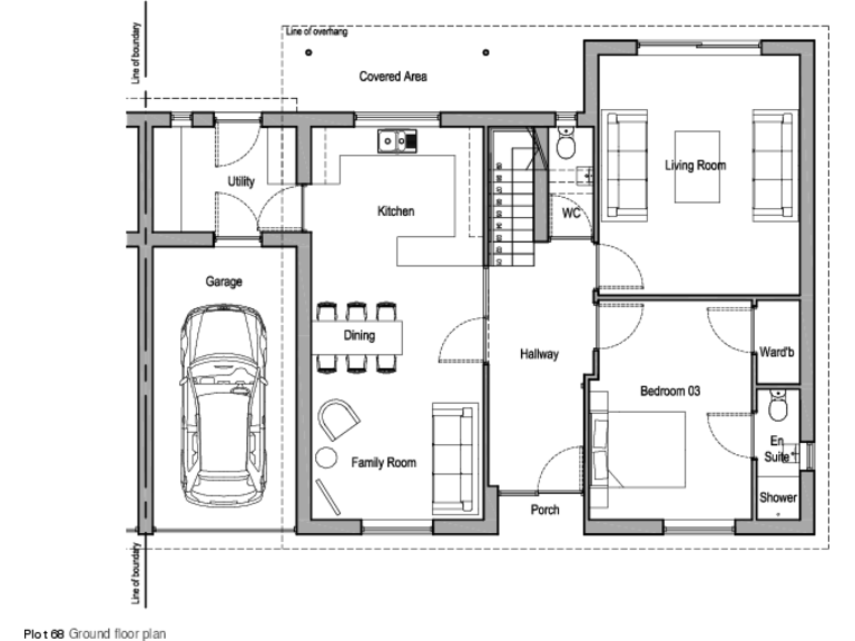
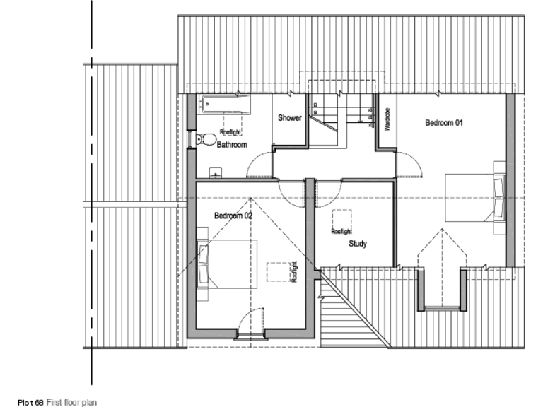
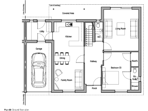
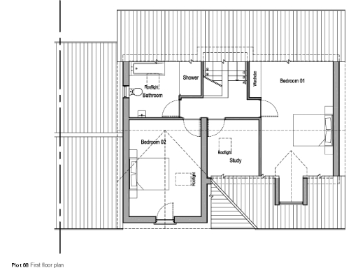
A newly built, single-storey home designed for comfortable, adaptable living. The open-plan kitchen/dining/family room with part-vaulted ceiling creates a generous social heart, while a separate living room provides a quieter space. The master bedroom includes an en suite and two further bedrooms offer flexible use for guests or a home office.
Practical features include underfloor gas central heating, an integral garage with driveway, a utility room with external door, and a very large enclosed rear garden with patio. The plot sits close to the village centre and golf club, within easy reach of Grimsby, Louth and local road links—useful for daily commutes or local amenities.
Buyers should note a few material points: broadband speeds in the area are reported slow, the tenure is not specified, and the developer reserves the right to amend plans and specification. The home will be sold with an ICW warranty and offers choice of kitchen and bathroom finishes, so buyers can personalise fittings during construction.
Overall this bungalow will suit buyers seeking single-level living with roomy, flexible accommodation and outdoor space—appealing to families wanting ground-floor convenience or downsizers wanting a contemporary, low-maintenance home.
3 bedroom detached bungalow for sale in Plot 76, The Green, Waltham, DN37 — £395,000 • 3 bed • 2 bath • 1092 ft²
3 bedroom detached bungalow for sale in Plot 74, The Green, Waltham, DN37 — £425,000 • 3 bed • 2 bath • 932 ft²
3 bedroom semi-detached house for sale in Plot 51, The Green, Waltham, DN37 — £259,950 • 3 bed • 2 bath • 1061 ft²
4 bedroom semi-detached house for sale in Plot 49, The Green, Waltham, DN37 — £295,000 • 4 bed • 2 bath • 1444 ft²
3 bedroom bungalow for sale in Plot 73, The Green, Waltham, DN37 — £392,000 • 3 bed • 2 bath • 2061 ft²
3 bedroom semi-detached house for sale in The Green, Cheapside, Waltham, DN37 — £275,000 • 3 bed • 2 bath


























































