Compact, well‑kept home with a very large internal garage space.
Two double bedrooms with neutral decor and good storage
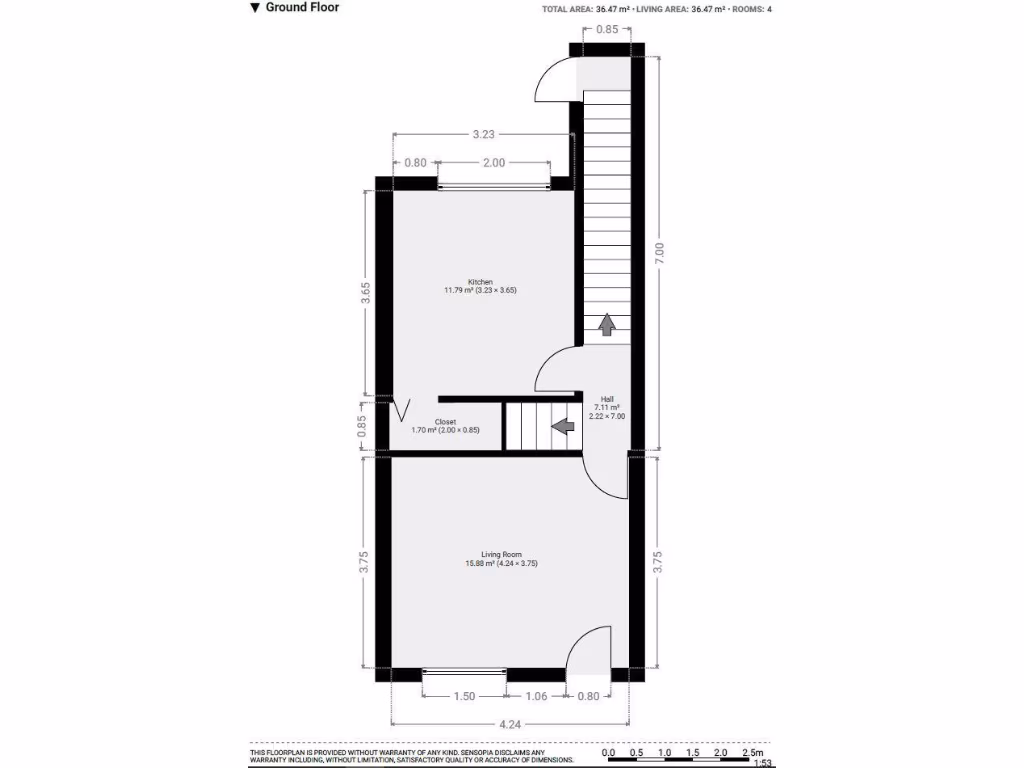
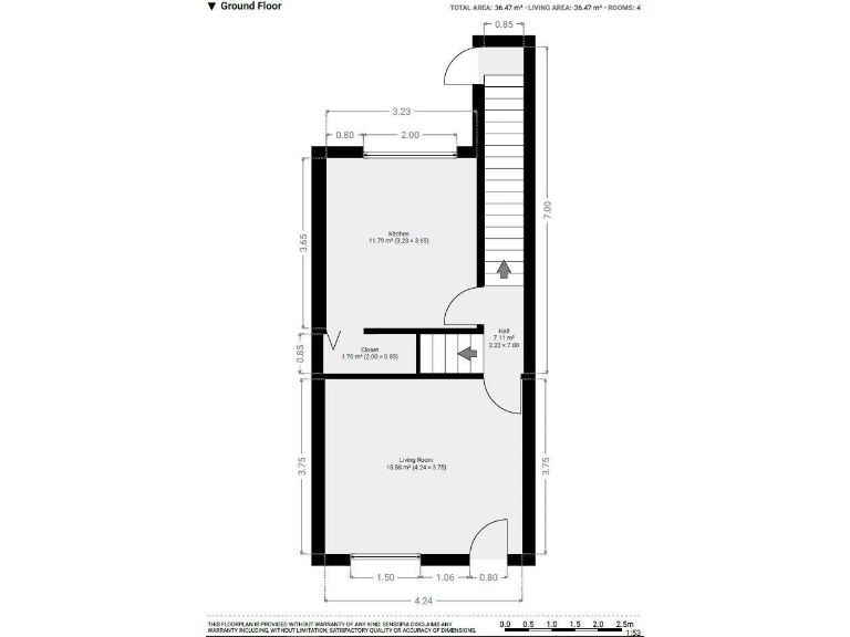
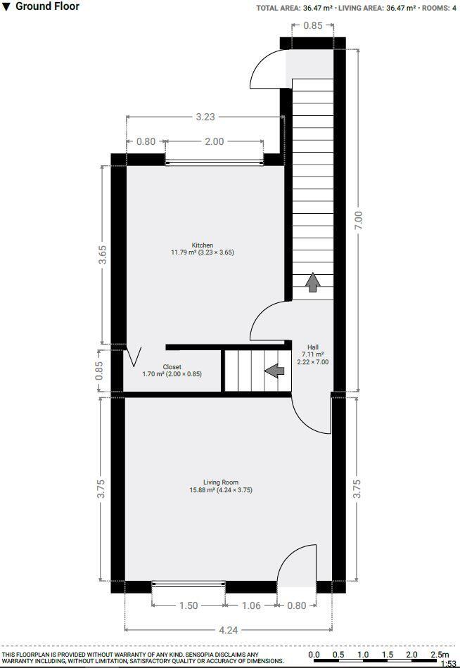
Set on South Cliff’s Belvedere Place, this well‑kept two‑bedroom mid‑terrace offers compact, comfortable living with a rare large internal garage. The house is presented in good decorative order with neutral finishes, double glazing and mains gas central heating — move‑in ready for a first home or buy‑to‑let. EPC rated D and Council Tax Band B keep running costs moderate.
Accommodation is arranged over two main storeys with a substantial basement garage accessed from the rear. The front living room brings natural light and a feature fireplace; the modern kitchen/diner includes a pantry and space for a table. Upstairs provides a generous master bedroom, a second double bedroom and a bathroom with shower over bath.
Outdoor space is limited to a gated forecourt; the standout asset is the c.30 m² internal garage which gives secure parking, large storage or conversion potential subject to consents. The property sits in a well‑served South Cliff neighbourhood with fast broadband, excellent mobile signal and local amenities nearby. Buyers should note higher than average local crime levels and the small plot size when weighing options.
2 bedroom flat for sale in Granville Road, Scarborough, YO11 — £150,000 • 2 bed • 1 bath • 658 ft²
2 bedroom terraced house for sale in Trinity Close, Scarborough, North Yorkshire, YO11 — £150,000 • 2 bed • 1 bath • 592 ft²
2 bedroom terraced house for sale in Trinity Close, Scarborough, North Yorkshire, YO11 — £150,000 • 2 bed • 1 bath • 743 ft²
2 bedroom flat for sale in Esplanade Road, Scarborough, YO11 — £140,000 • 2 bed • 1 bath • 764 ft²
2 bedroom apartment for sale in Holbeck Hill, Albany House, YO11 — £180,000 • 2 bed • 1 bath • 926 ft²
2 bedroom apartment for sale in Belvedere Place, Scarborough, YO11 — £160,000 • 2 bed • 2 bath • 1462 ft²






























































































