**Standout Features:**
- Stunning three-bedroom split-level penthouse in Chelsea Harbour
- Expansive roof terrace and balcony with picturesque views
- Two modern bathrooms
- Excellent concierge service and secure garage parking
- Access to vibrant local amenities and a serene marina lifestyle
**Concerns:**
- Leasehold property
- Council Tax Band: G indicates higher costs
- Average-sized flat compared to market luxury standards
- Potential for maintenance associated with a mid-terrace build
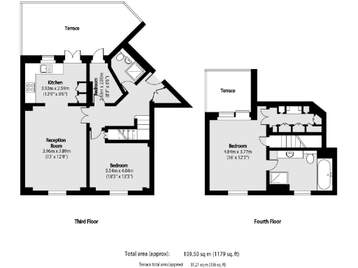
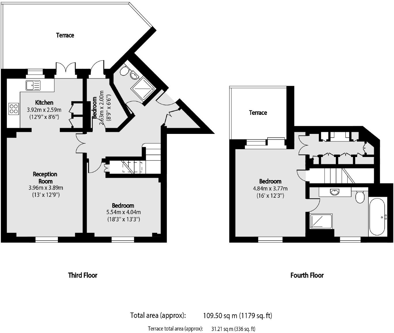
Nestled within the prestigious Chelsea Harbour, this beautifully presented three-bedroom split-level penthouse offers exceptional urban living with delightful views of the marina and cityscape. Spanning 1,179 square feet, the property features a generous roof terrace perfect for entertaining or relaxing while enjoying the skyline. With a bright and inviting interior, the penthouse boasts two modern bathrooms and spacious living areas, making it ideal for families or professionals seeking comfort and style.
In addition to its luxurious design, residents have access to first-rate amenities including secure parking and a dedicated concierge service, enhancing the living experience in this reputable area. While the property is leasehold and comes with higher council tax, the tranquil nearby amenities, low crime rate, and fast broadband connectivity make it a coveted choice for those looking to immerse themselves in an upscale lifestyle. This is a rare opportunity to own a slice of comfort in one of London's most sought-after areas—don't miss your chance to make it yours!
2 bedroom flat for sale in Carlyle Court, Chelsea Harbour, SW10 — £970,000 • 2 bed • 2 bath • 1173 ft²
3 bedroom apartment for sale in Chelsea Crescent, Chelsea Harbour, SW10 — £3,800,000 • 3 bed • 3 bath • 2818 ft²
4 bedroom apartment for sale in Carlyle Court, Chelsea Harbour, SW10 — £2,600,000 • 4 bed • 3 bath • 2491 ft²
3 bedroom apartment for sale in Chelsea Crescent, Chelsea Harbour, London, SW10 — £2,995,000 • 3 bed • 2 bath • 2753 ft²
3 bedroom flat for sale in Harbour Avenue, Chelsea, SW10 — £4,950,000 • 3 bed • 3 bath • 2110 ft²
2 bedroom flat for sale in Carlyle Court, Chelsea Harbour, SW10 — £699,950 • 2 bed • 2 bath • 1012 ft²


































