**Standout Features:**
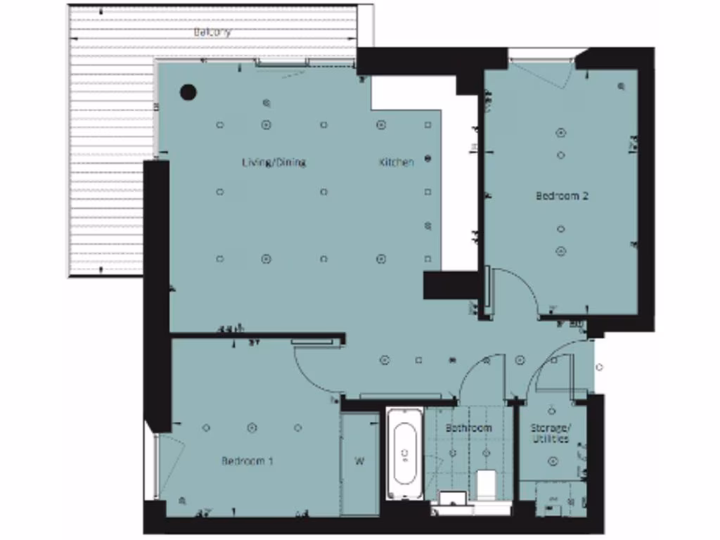
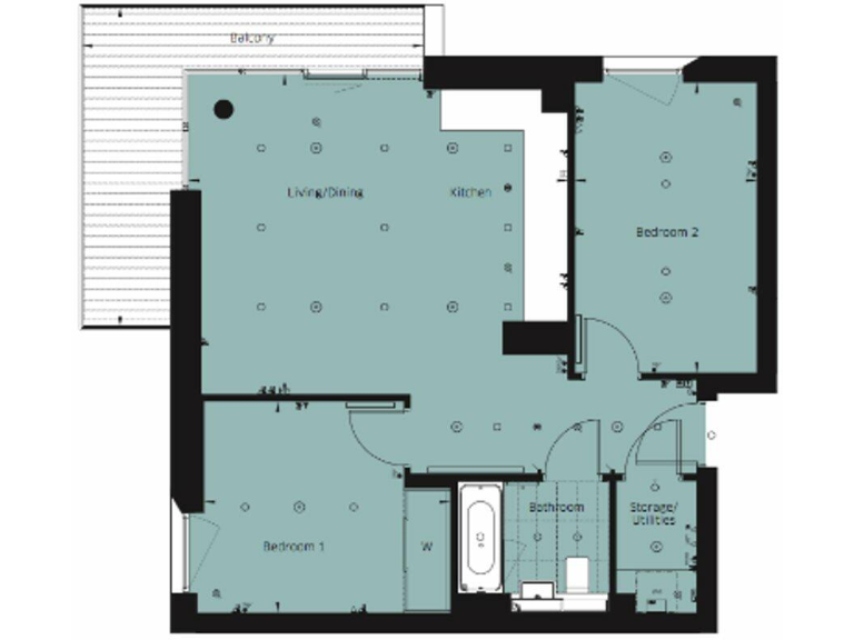
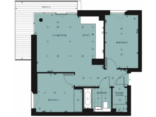
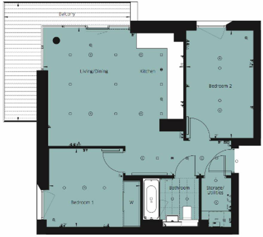
- Two-bedroom, modern apartment in a contemporary high-rise.
- Exceptional open-plan living, dining, and kitchen area with large windows for natural light.
- Fully equipped kitchen with integrated appliances.
- Chain-free sale with a long lease (993 years remaining).
- Located near Kidbrooke train station for quick access to Central London.
- Surrounded by vibrant locales like Blackheath Village and Greenwich, with parks and amenities nearby.
**Potential Concerns:**
- Service charge of £3,250 per year and ground rent of £375.
- Average neighborhood crime rate and area deprivation.
This stunning two-bedroom apartment, designed with contemporary style and modern conveniences, offers an enviable urban lifestyle. Boasting an expansive open-plan layout, the living space is flooded with natural light through floor-to-ceiling windows, perfect for entertaining or relaxing in comfort. The high-standard kitchen is a chef's delight, complete with integrated appliances tailored for a seamless experience.
Situated just moments away from Kidbrooke train station, residents enjoy effortless travel to iconic London destinations in under 30 minutes. With the lush parks and vibrant atmosphere of Blackheath and Greenwich just a stone’s throw away, you can indulge in a variety of boutiques, restaurants, and cafes at your leisure.
While the apartment offers incredible access and lifestyle options, be mindful of the service charge and average crime rate in the area. This property represents a unique opportunity for first-time buyers or investors seeking rental potential, particularly given the current rental income of £2,300 per month until October 2024. Don’t miss your chance to secure this exquisite flat that perfectly balances city living with the comforts of home.
2 bedroom apartment for sale in Marsden House, Kidbrooke, SE3 — £450,000 • 2 bed • 2 bath • 848 ft²
2 bedroom apartment for sale in Ottley Drive, Kidbrooke, SE3 — £475,000 • 2 bed • 2 bath • 915 ft²
3 bedroom apartment for sale in Anderson Road, London SE3 — £580,000 • 3 bed • 1 bath • 1141 ft²
3 bedroom house for sale in Dowding Drive, London, SE9 — £450,000 • 3 bed • 2 bath • 1250 ft²
2 bedroom apartment for sale in Pegler Square, Greenwich, London, SE3 — £535,000 • 2 bed • 2 bath • 786 ft²
2 bedroom apartment for sale in Fairthorn Road, Charlton, SE7 — £415,000 • 2 bed • 2 bath • 673 ft²


















































